Top.Mail.Ru

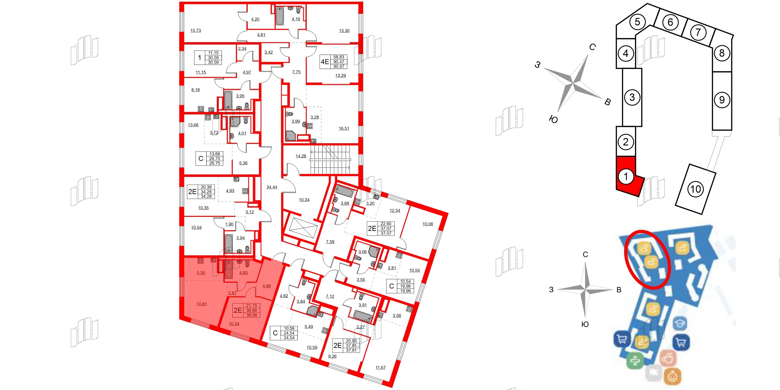
2е комнатная квартира 38.88 м², № 59

Квартира в ЖК Квартал Лаголово, 1 комнатная, 38.88 м², 8 этаж
Квартира в ЖК Квартал Лаголово, 1 комнатная, 38.88 м², 8 этаж
38,88 м² 21,15 м² 5,35 м² 2.77 м 8 из 9
Общая площадь Площадь комнат Площадь кухни Высота потолка Этаж
Тип санузла:  Совмещенный Балкон - нет Отделка — 
White Box ("Уайт Бокс")
Выберите условия покупки
Перейти к сравнению