Top.Mail.Ru

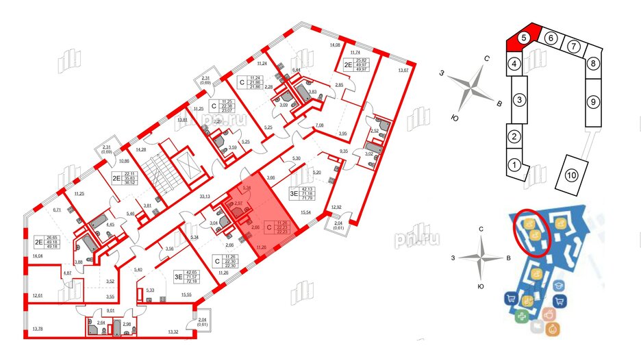
Студия 22.23 м², № 322

Квартира в ЖК Квартал Лаголово, студия, 22.23 м², 7 этаж
Квартира в ЖК Квартал Лаголово, студия, 22.23 м², 7 этаж
22,23 м² 11,26 м² 2,66 м² 2.77 м 7 из 9
Общая площадь Площадь комнат Площадь кухни Высота потолка Этаж
Тип санузла:  Совмещенный Балкон - нет Отделка — 
White Box ("Уайт Бокс")
Выберите условия покупки
Перейти к сравнению