Top.Mail.Ru

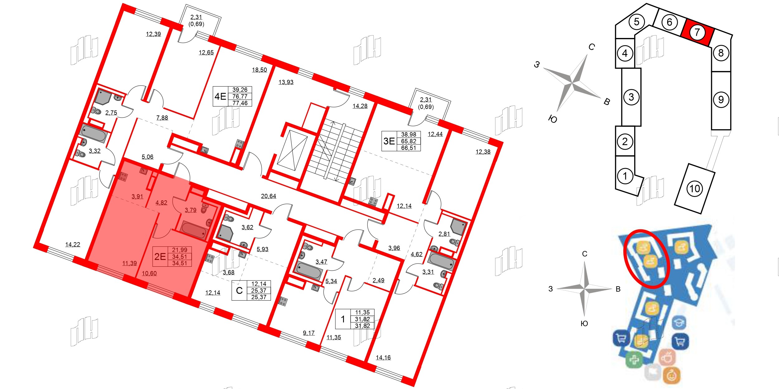
2е комнатная квартира 34.51 м², № 403

Квартира в ЖК Квартал Лаголово, 1 комнатная, 34.51 м², 5 этаж
Квартира в ЖК Квартал Лаголово, 1 комнатная, 34.51 м², 5 этаж
34,51 м² 21,99 м² 3,91 м² 2.77 м 5 из 9
Общая площадь Площадь комнат Площадь кухни Высота потолка Этаж
Тип санузла:  Совмещенный Балкон - нет Отделка — 
White Box ("Уайт Бокс")
Выберите условия покупки
Перейти к сравнению