Главная
Новостройки
Лайнеръ
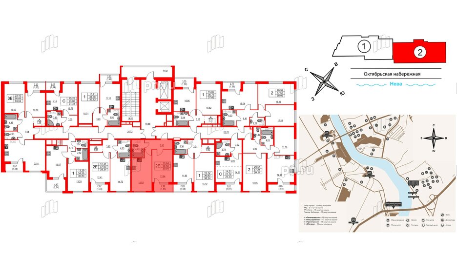
2e комн. кв. 39.94 м²
2е комнатная квартира 39.94 м², № 163
ЖК Лайнеръ
, 1
Срок сдачи — Сдан
В
избранном
избранное
Удалить из сравнения
Сравнить
Распечатать
Отправить по почте
Планировка
На этаже
На карте
Меблировка
39,94 м²
13,64 м²
15,03 м²
2.8 м
3 из 15
Общая площадь
Площадь комнат
Площадь кухни
Высота потолка
Этаж
Тип санузла: 
Совмещенный
Лоджия
Отделка —
Нет
Запросить цену
100% оплата
Ипотека
от 8 232
₽/мес.
Выбрать условия
Доступные опции
Меблировка
от 224 000 руб.
Выберите условия покупки
Забронируйте объект по телефону
Онлайн-бронирование временно недоступно
Перейти к сравнению
Закрыть