Top.Mail.Ru

5е комнатная квартира 119.1 м², № 1030

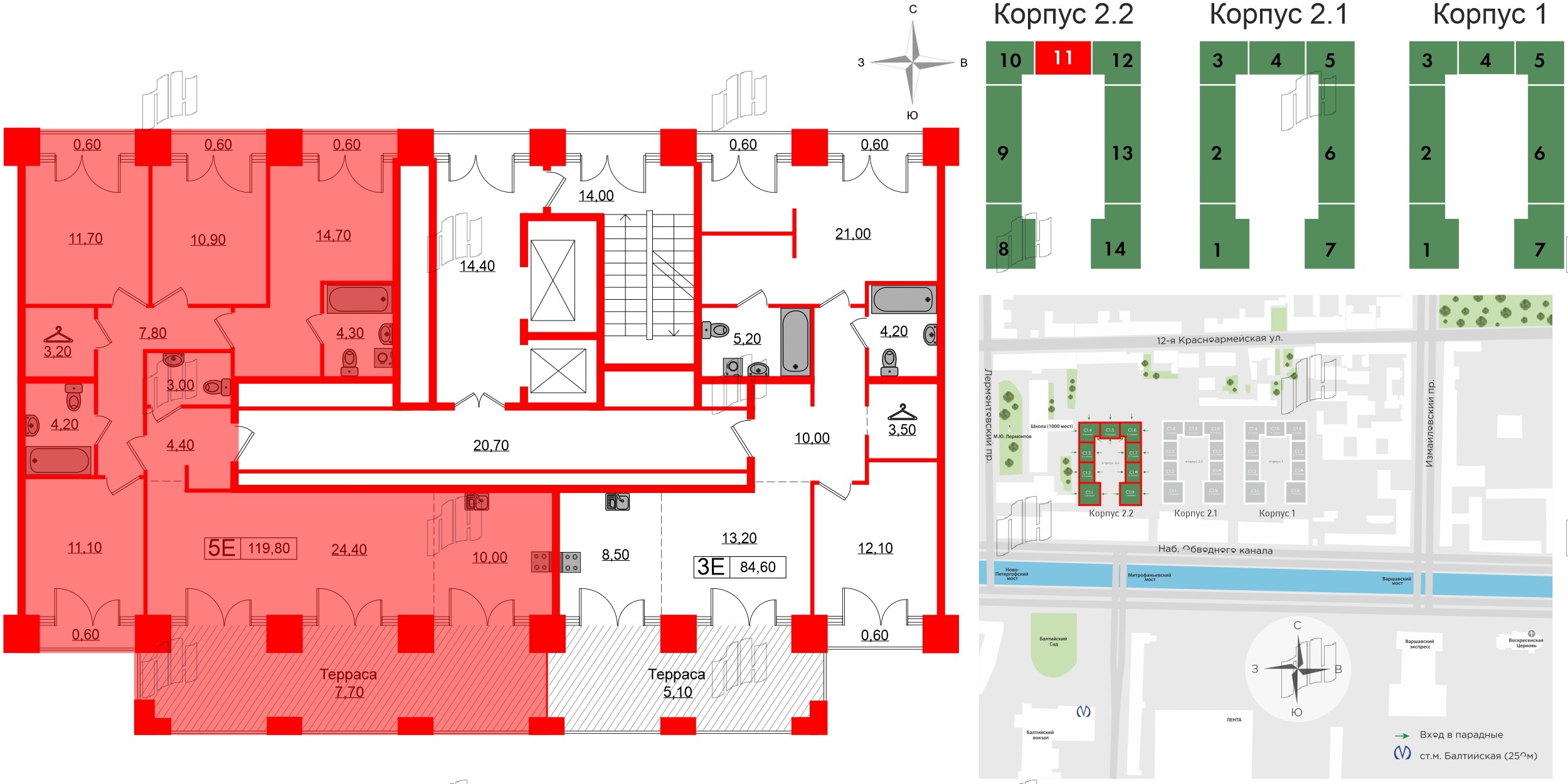
Квартира в ЖК «Лермонтовский 54», 4 комнатная, 119.1 м², 9 этаж
Квартира в ЖК «Лермонтовский 54», 4 комнатная, 119.1 м², 9 этаж
119,10 м² 48,40 м² 34,40 м² от 3 до 3 м 9 из 9
Общая площадь Площадь комнат Площадь кухни Высота потолка Этаж
Три санузла Балкон - нет Отделка — 
Нет

Уникальные квартиры

Выберите условия покупки
Перейти к сравнению