Top.Mail.Ru

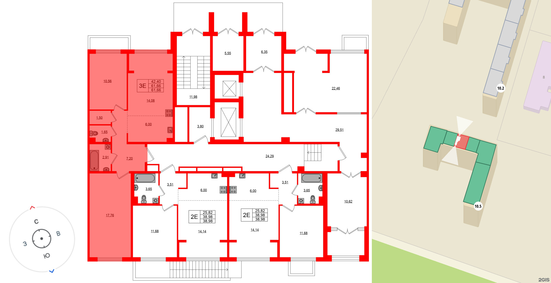
3е комнатная квартира 61.66 м², № 134

Квартира в ЖК «ЛесАрт», 2 комнатная, 61.66 м², 1 этаж
Квартира в ЖК «ЛесАрт», 2 комнатная, 61.66 м², 1 этаж
61,66 м² 28,32 м² 20,08 м² 2.67 м 1 из 12
Общая площадь Площадь комнат Площадь кухни Высота потолка Этаж
Тип санузла:  Раздельный Балкон - нет Отделка — 
ЛесArt
Выберите условия покупки
Перейти к сравнению