Top.Mail.Ru

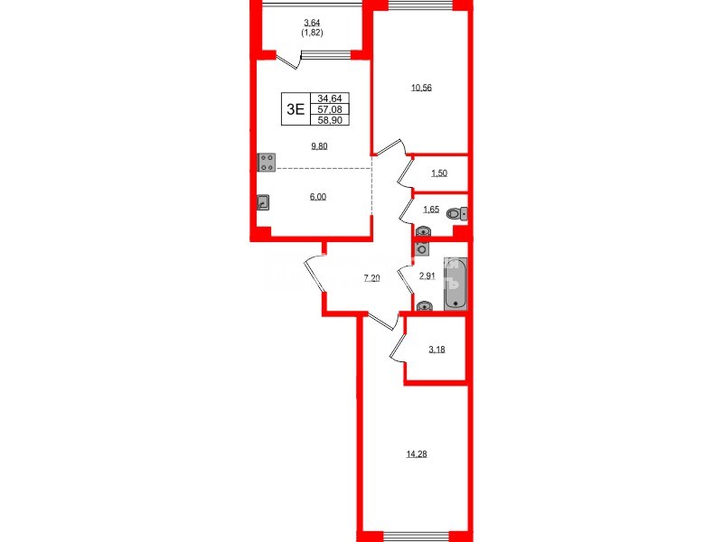
3е комнатная квартира 58.9 м², № 211

Квартира в ЖК «ЛесАрт», 2 комнатная, 58.9 м², 9 этаж
Квартира в ЖК «ЛесАрт», 2 комнатная, 58.9 м², 9 этаж
58,90 м² 24,84 м² 15,80 м² 2.67 м 9 из 12
Общая площадь Площадь комнат Площадь кухни Высота потолка Этаж
Тип санузла:  Раздельный Лоджия Отделка — 
ЛесArt

Уникальные квартиры

Квартира с гардеробной
Подробнее о преимуществе

Выберите условия покупки
Перейти к сравнению