Главная
Новостройки
ЛесАрт
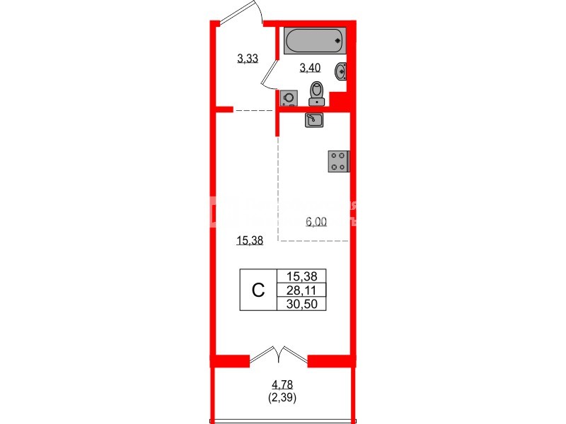
Студия 30.5 м²
Студия 30.5 м², № 375
ЖК «ЛесАрт»
, Корпус 10.5
Срок сдачи — I кв. 2026
г.
В
избранном
избранное
Удалить из сравнения
Сравнить
Распечатать
Отправить по почте
Планировка
На этаже
На карте
Отделка
Меблировка
30,50 м²
21,38 м²
2.67 м
4 из 12
Общая площадь
Площадь комнат
Высота потолка
Этаж
Тип санузла: 
Совмещенный
Лоджия
Отделка —
ЛесArt
Запросить цену
100% оплата
Ипотека
от 1 441
₽/мес.
Выбрать условия
Доступные опции
Меблировка
от 224 000 руб.
Отделка
включена
Выберите условия покупки
Забронируйте объект по телефону
Онлайн-бронирование временно недоступно
Перейти к сравнению
Закрыть