Top.Mail.Ru

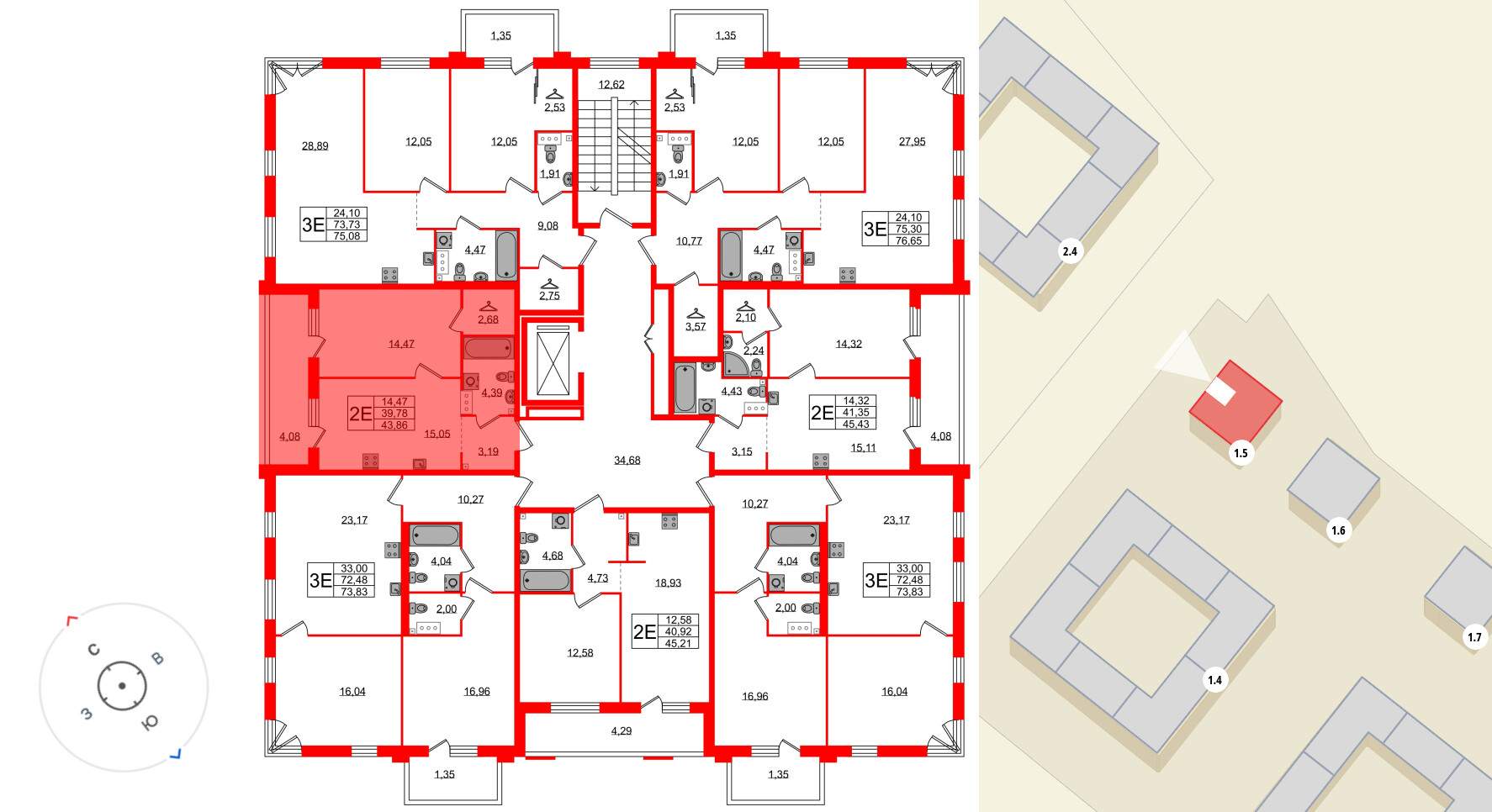
2е комнатная квартира 43.86 м², № 13

Квартира в ЖК «Лисино», 1 комнатная, 43.86 м², 2 этаж
Квартира в ЖК «Лисино», 1 комнатная, 43.86 м², 2 этаж
43,86 м² 14,47 м² 15,05 м² 3 м 2 из 4
Общая площадь Площадь комнат Площадь кухни Высота потолка Этаж
Тип санузла:  Совмещенный Лоджия Отделка — 
Уайт Бокс Лисино

Уникальные квартиры

Квартира с гардеробной
Подробнее о преимуществе

Выберите условия покупки
Перейти к сравнению