Top.Mail.Ru

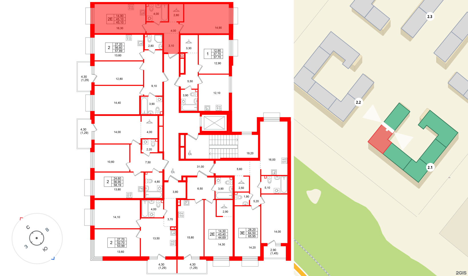
2е комнатная квартира 45.1 м², № 113

Квартира в ЖК Лисино, 1 комнатная, 45.1 м², 4 этаж
Квартира в ЖК Лисино, 1 комнатная, 45.1 м², 4 этаж
45,10 м² 14,90 м² 16,30 м² 3 м 4 из 4
Общая площадь Площадь комнат Площадь кухни Высота потолка Этаж
Тип санузла:  Совмещенный Балкон - нет Отделка — 
WhiteBox ("Уайт Бокс") Лисино
WhiteBox ("Уайт Бокс") Лисино

Уникальные квартиры

Квартира с гардеробной
Подробнее о преимуществе

Условия покупки

Дополнительная скидка 10% | ЖК в Курортном районе
*Подробнее
Выберите условия покупки
Перейти к сравнению