Top.Mail.Ru

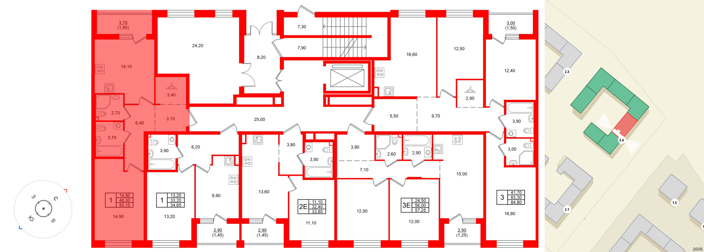
1 комнатная квартира 52 м², № 87

Квартира в ЖК Лисино, 1 комнатная, 52 м², 1 этаж
Квартира в ЖК Лисино, 1 комнатная, 52 м², 1 этаж
52,00 м² 14,90 м² 14,10 м² 3 м 1 из 4
Общая площадь Площадь комнат Площадь кухни Высота потолка Этаж
Два санузла Лоджия Отделка — 
WhiteBox ("Уайт Бокс") Лисино
WhiteBox ("Уайт Бокс") Лисино

Уникальные квартиры

Квартира с гардеробной
Подробнее о преимуществе

Условия покупки

Дополнительная скидка 10% | ЖК в Курортном районе
*Подробнее
Выберите условия покупки
Перейти к сравнению