Top.Mail.Ru

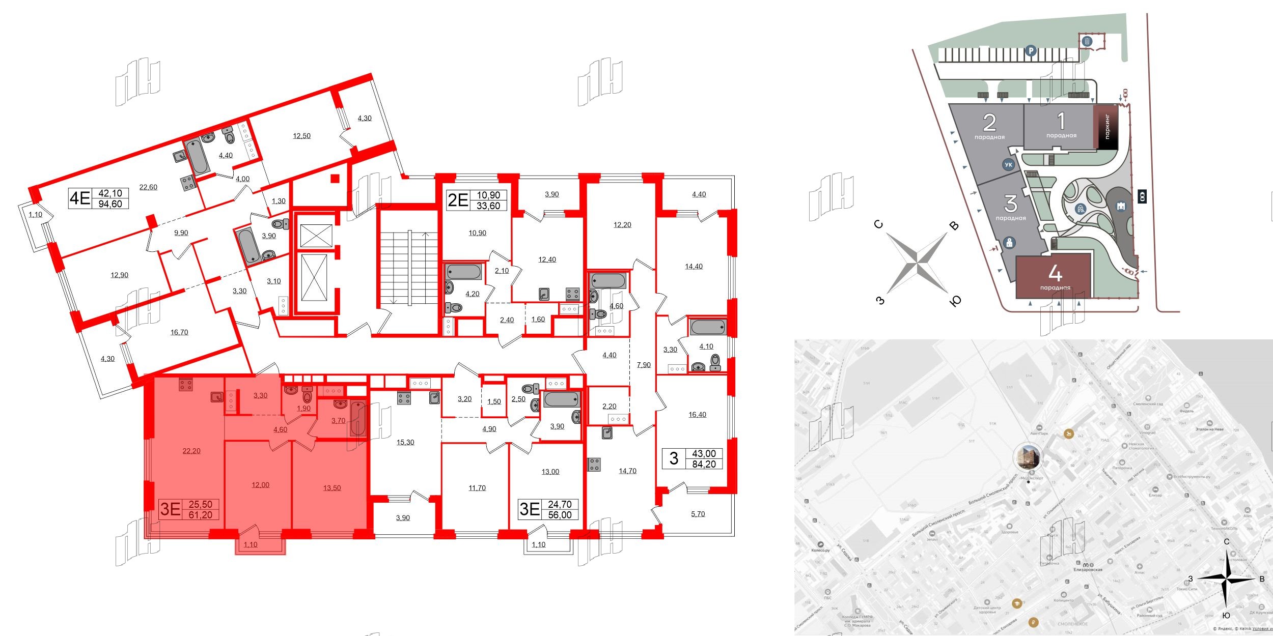
3е комнатная квартира 61.2 м², № 174

Квартира в ЖК «Литера», 2 комнатная, 61.2 м², 8 этаж
Квартира в ЖК «Литера», 2 комнатная, 61.2 м², 8 этаж
61,20 м² 25,50 м² 22,20 м² 3.05 м 8 из 12
Общая площадь Площадь комнат Площадь кухни Высота потолка Этаж
Тип санузла:  Раздельный Есть балкон Отделка — 
Нет
Выберите условия покупки
Перейти к сравнению