Top.Mail.Ru

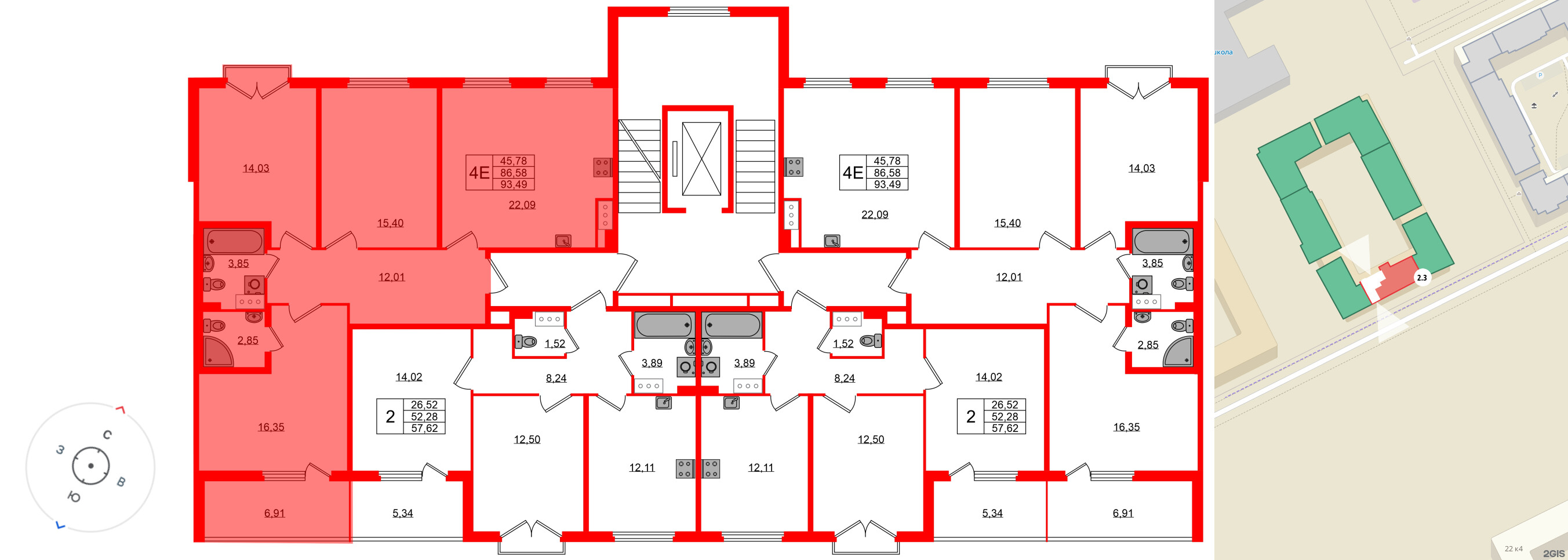
4е комнатная квартира 86.58 м², № 110

Квартира в ЖК Любоград, 3 комнатная, 86.58 м², 3 этаж
Квартира в ЖК Любоград, 3 комнатная, 86.58 м², 3 этаж
86,58 м² 45,78 м² 22,09 м² 2.77 м 3 из 4
Общая площадь Площадь комнат Площадь кухни Высота потолка Этаж
Два санузла Лоджия Отделка — 
Отделка ЖК Любоград
Выберите условия покупки
Перейти к сравнению