Top.Mail.Ru

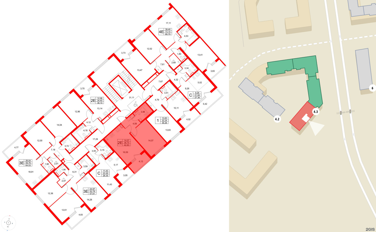
2е комнатная квартира 42.83 м², № 107

Квартира в ЖК Любоград, 1 комнатная, 42.83 м², 2 этаж
Квартира в ЖК Любоград, 1 комнатная, 42.83 м², 2 этаж
42,83 м² 14,07 м² 16,59 м² 2.76 м 2 из 4
Общая площадь Площадь комнат Площадь кухни Высота потолка Этаж
Тип санузла:  Совмещенный Лоджия Отделка — 
Отделка ЖК Любоград «NEW»
Выберите условия покупки
Перейти к сравнению