Top.Mail.Ru

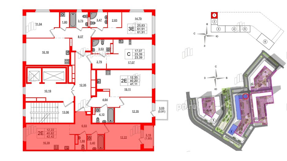
1 комнатная квартира 42.42 м², № 20

Квартира в ЖК Максималист, 1 комнатная, 42.42 м², 6 этаж
Квартира в ЖК Максималист, 1 комнатная, 42.42 м², 6 этаж
42,42 м² 2.73 м 6 из 12
Общая площадь Высота потолка Этаж
Отделка — 
Карамель
Выберите условия покупки
Перейти к сравнению