Top.Mail.Ru

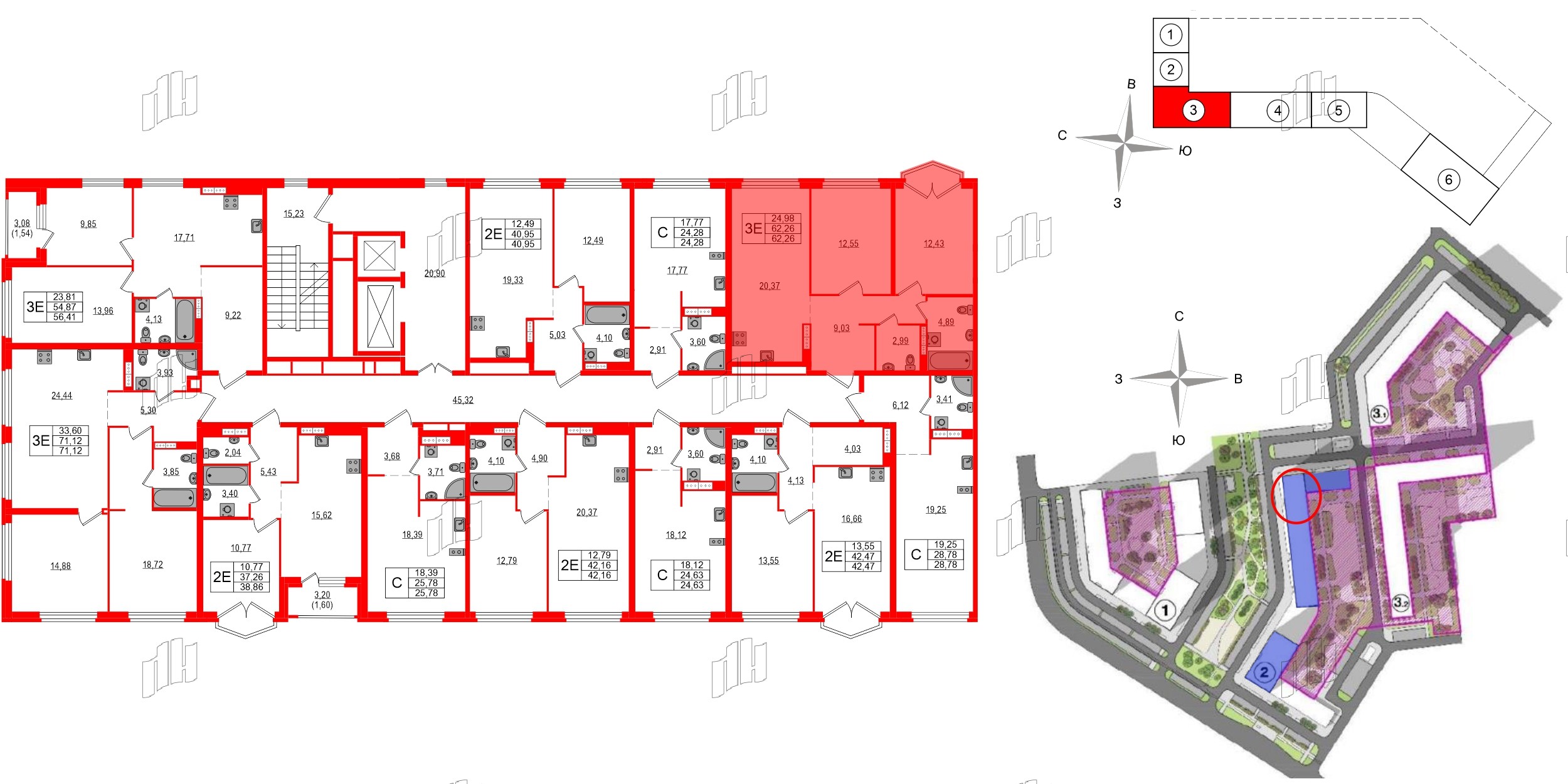
2 комнатная квартира 62.26 м², № 242

Квартира в ЖК «Максималист», 2 комнатная, 62.26 м², 16 этаж
Квартира в ЖК «Максималист», 2 комнатная, 62.26 м², 16 этаж
62,26 м² 2.73 м 16 из 18
Общая площадь Высота потолка Этаж
Отделка — 
Нет

Уникальные квартиры

Французский балкон
Подробнее о преимуществе

Выберите условия покупки
Перейти к сравнению