Top.Mail.Ru

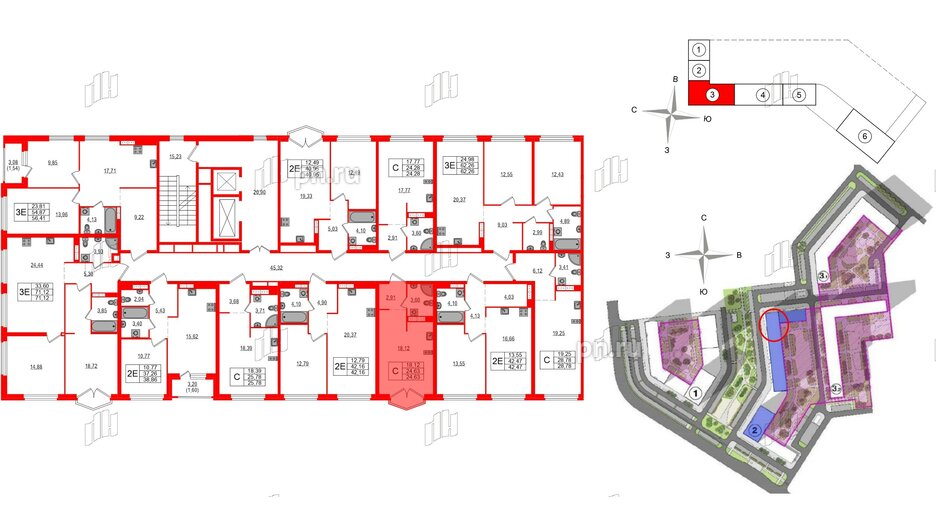
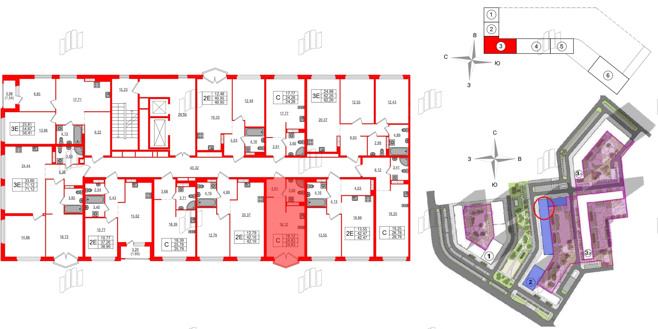
Студия 24.63 м², № 256

Квартира в ЖК «Максималист», студия, 24.63 м², 17 этаж
Квартира в ЖК «Максималист», студия, 24.63 м², 17 этаж
24,63 м² 2.73 м 17 из 18
Общая площадь Высота потолка Этаж
Отделка — 
Нет

Уникальные квартиры

Французский балкон
Подробнее о преимуществе

Выберите условия покупки
Перейти к сравнению