Top.Mail.Ru

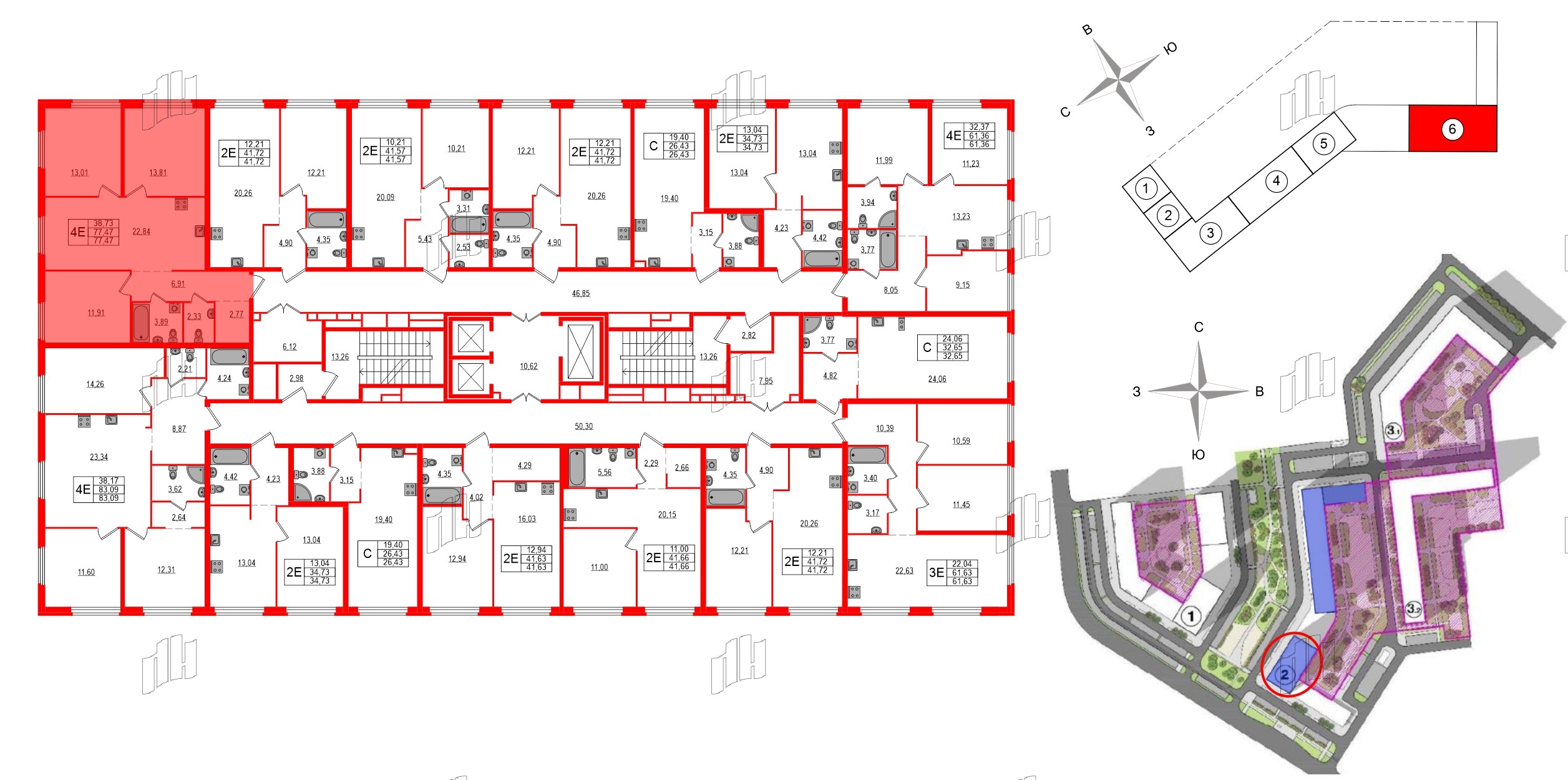
3 комнатная квартира 77.47 м², № 650

Квартира в ЖК Максималист, 3 комнатная, 77.47 м², 2 этаж
Квартира в ЖК Максималист, 3 комнатная, 77.47 м², 2 этаж
77,47 м² 2.73 м 2 из 18
Общая площадь Высота потолка Этаж
Отделка — 
Графит
Выберите условия покупки
Перейти к сравнению