Top.Mail.Ru

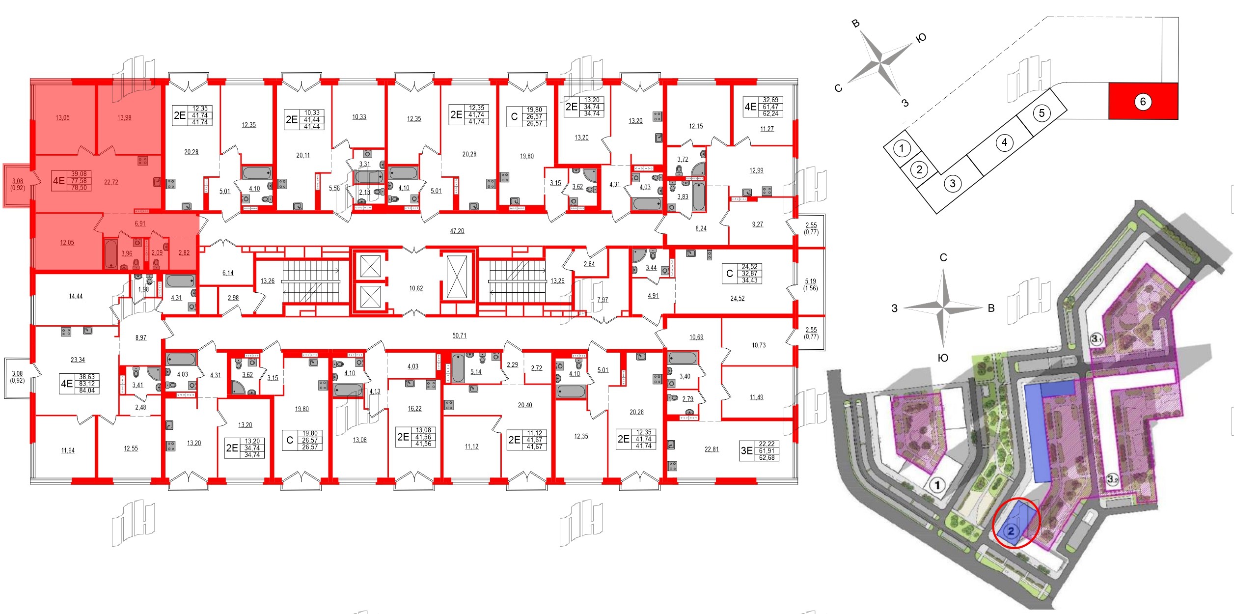
3 комнатная квартира 78.5 м², № 815

Квартира в ЖК Максималист, 3 комнатная, 78.5 м², 13 этаж
Квартира в ЖК Максималист, 3 комнатная, 78.5 м², 13 этаж
78,50 м² 2.73 м 13 из 18
Общая площадь Высота потолка Этаж
Отделка — 
Графит
Выберите условия покупки
Перейти к сравнению