Top.Mail.Ru

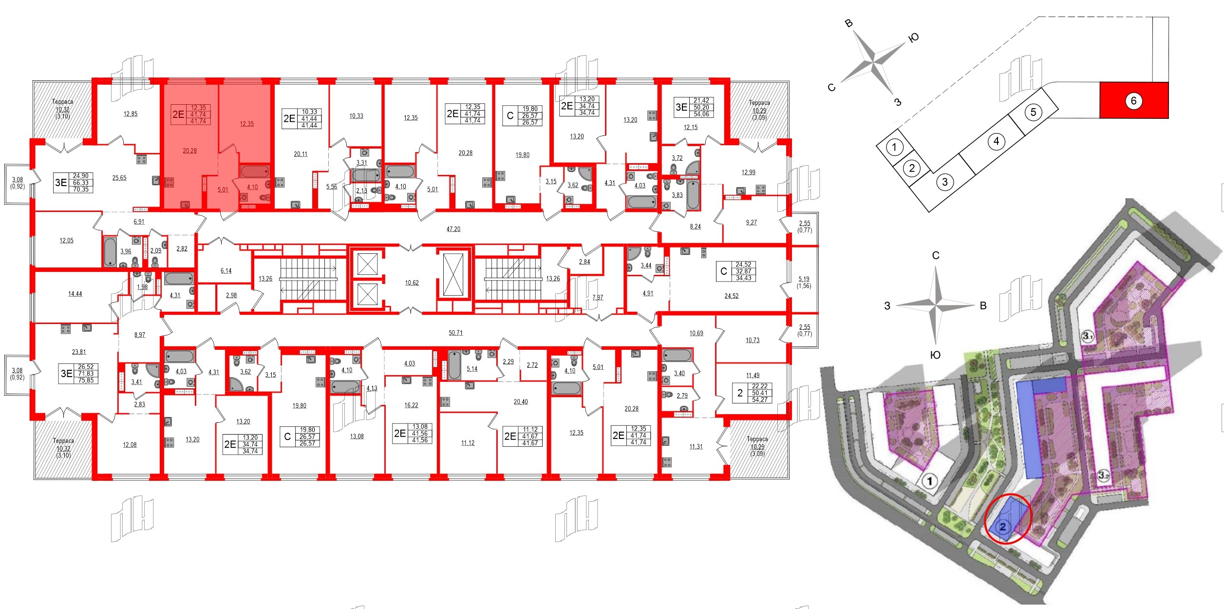
1 комнатная квартира 41.74 м², № 891

Квартира в ЖК Максималист, 1 комнатная, 41.74 м², 18 этаж
Квартира в ЖК Максималист, 1 комнатная, 41.74 м², 18 этаж
41,74 м² 3.03 м 18 из 18
Общая площадь Высота потолка Этаж
Отделка — 
Cкандинавия
Выберите условия покупки
Перейти к сравнению