Top.Mail.Ru

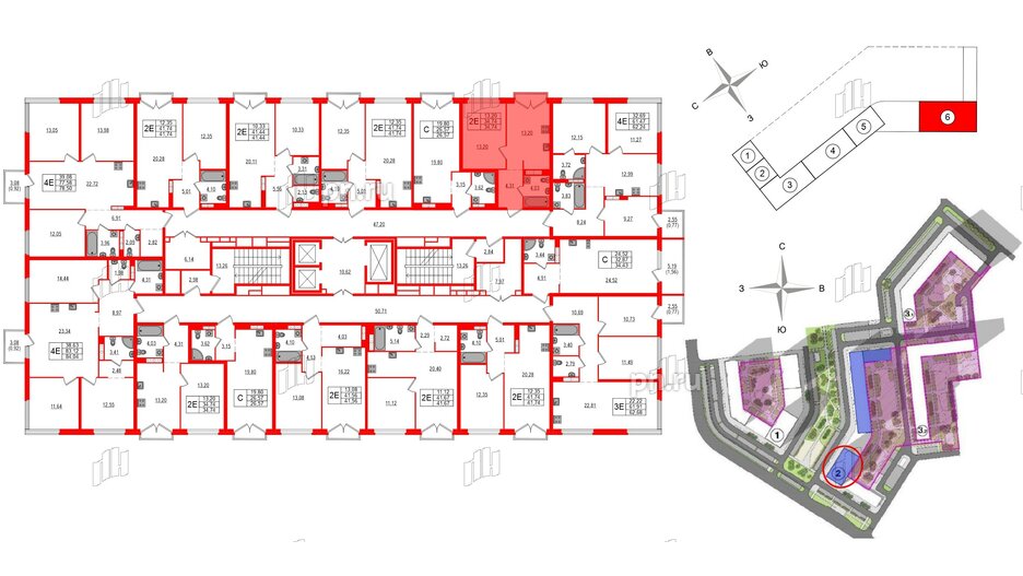
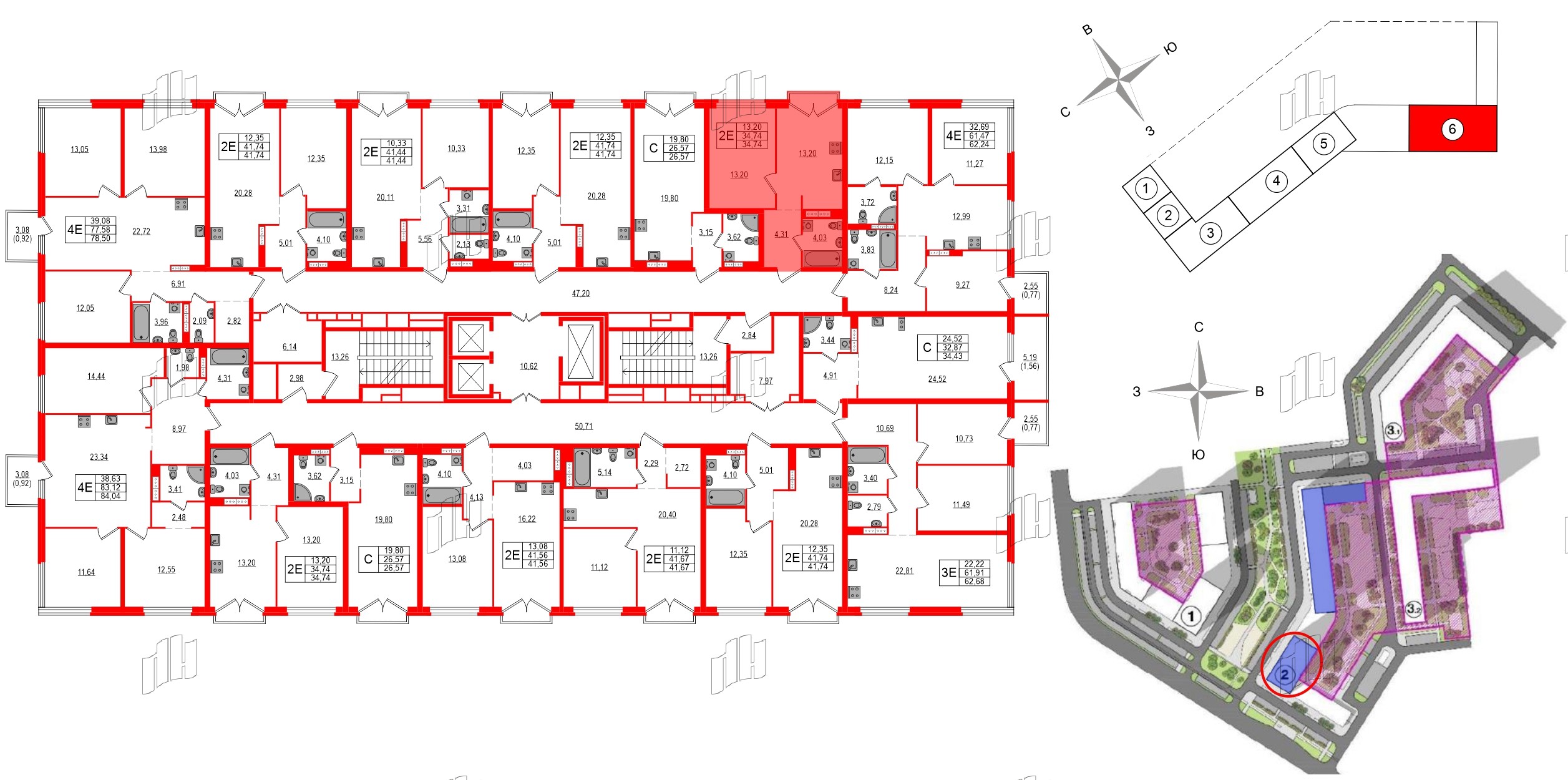
1 комнатная квартира 34.74 м², № 880

Квартира в ЖК «Максималист», 1 комнатная, 34.74 м², 17 этаж
Квартира в ЖК «Максималист», 1 комнатная, 34.74 м², 17 этаж
34,74 м² 2.73 м 17 из 18
Общая площадь Высота потолка Этаж
Отделка — 
Cкандинавия

Уникальные квартиры

Французский балкон
Подробнее о преимуществе

Выберите условия покупки
Перейти к сравнению