Top.Mail.Ru

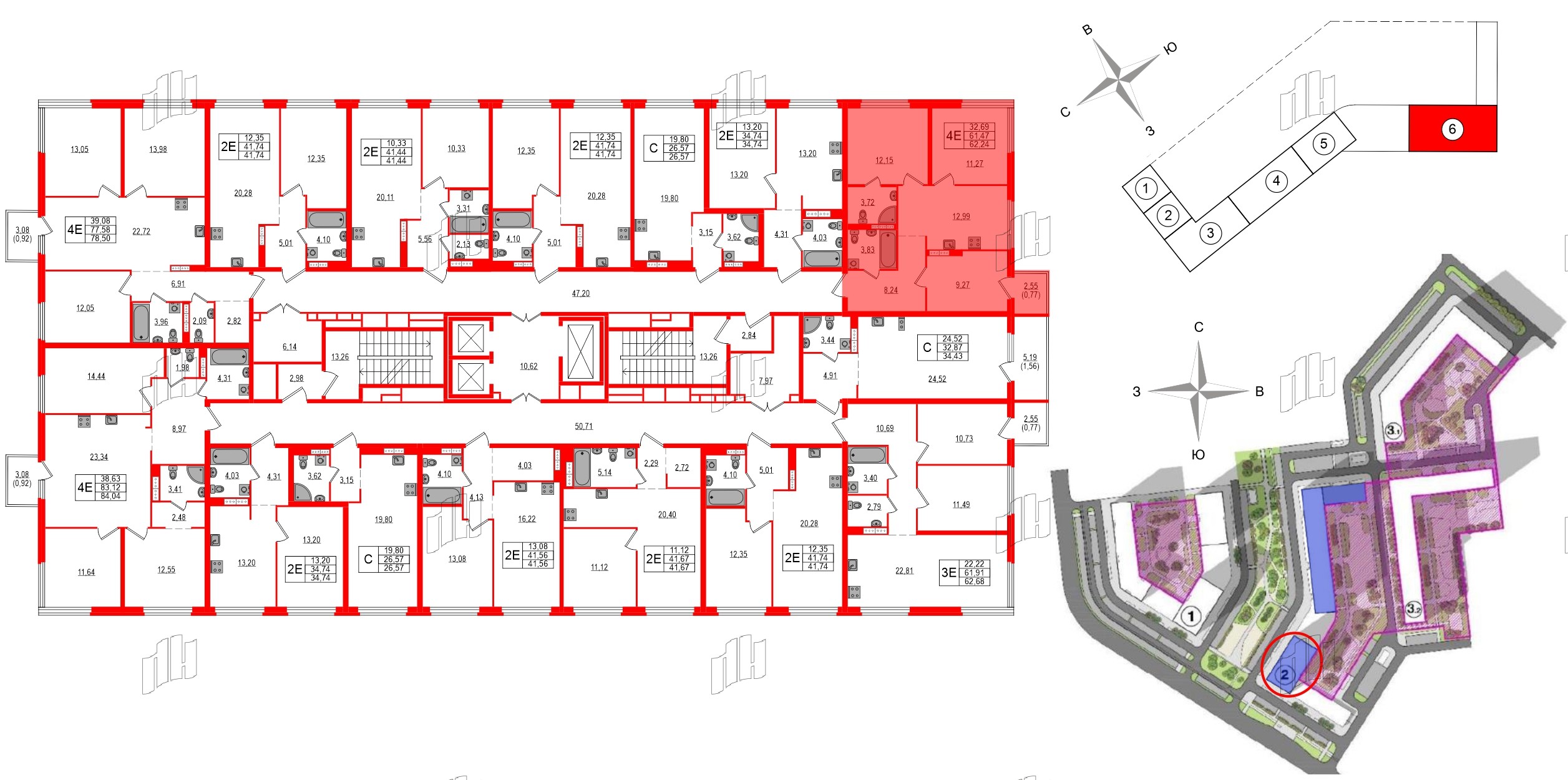
3 комнатная квартира 62.24 м², № 806

Квартира в ЖК Максималист, 3 комнатная, 62.24 м², 12 этаж
Квартира в ЖК Максималист, 3 комнатная, 62.24 м², 12 этаж
62,24 м² 2.73 м 12 из 18
Общая площадь Высота потолка Этаж
Отделка — 
Карамель
Выберите условия покупки
Перейти к сравнению