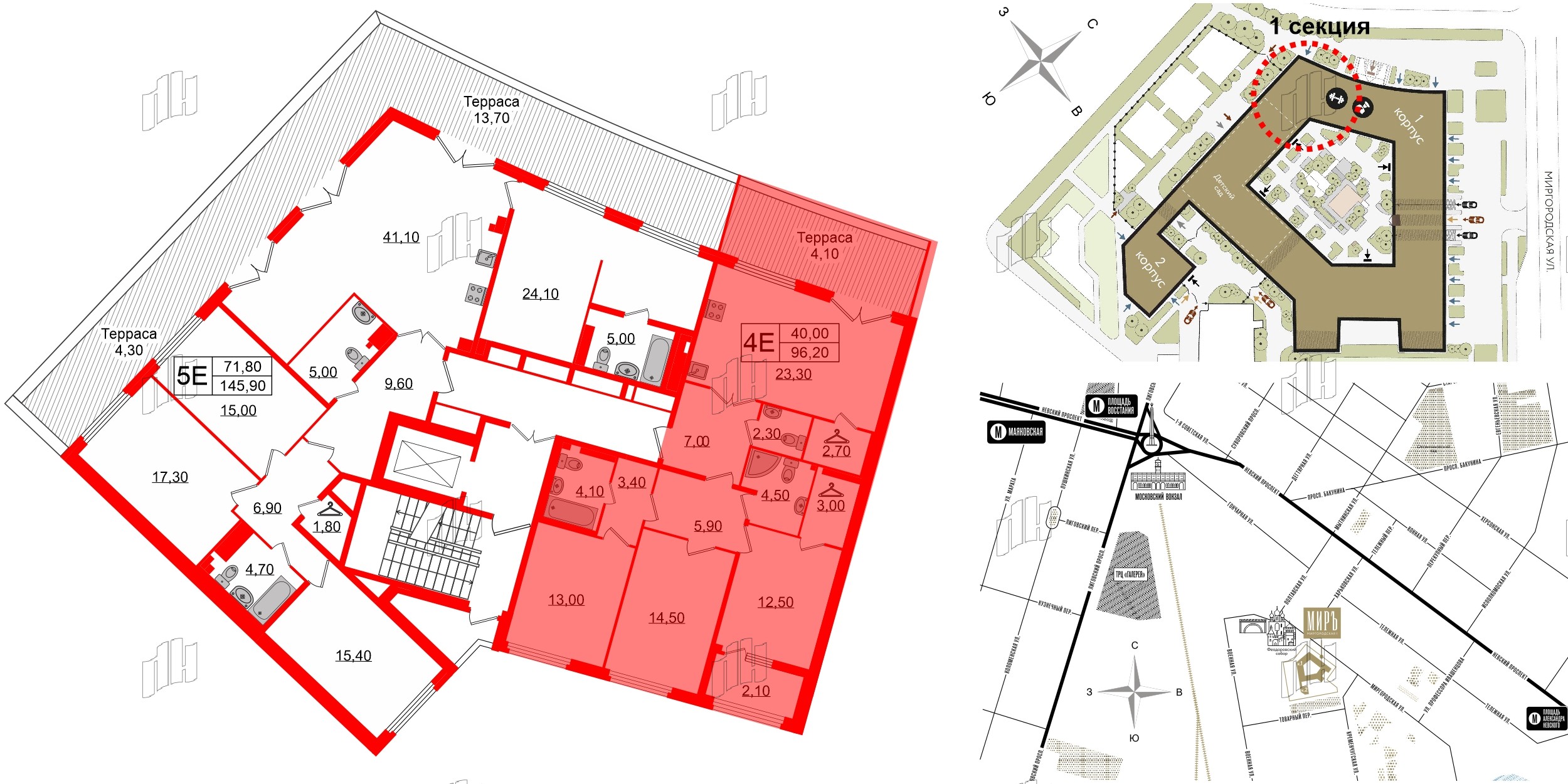
4е комнатная квартира 96 м², № 20
ЖК «Миръ» , Корпус 1
Срок сдачи — Сдан
| 96,00 м² | 40,00 м² | 23,30 м² | 3.15 м | 8 из 8 |
| Общая площадь | Площадь комнат | Площадь кухни | Высота потолка | Этаж |
|---|
| Три санузла | Лоджия + терраса | Отделка — |
Нет
|
|---|
Уникальные квартиры
Выберите условия покупки
Забронируйте объект по телефону
Онлайн-бронирование временно недоступно