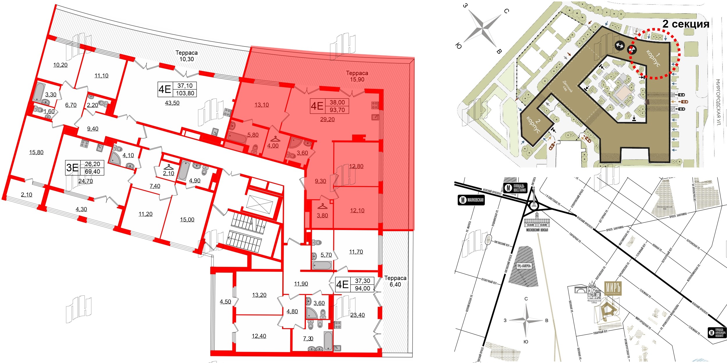
4е комнатная квартира 93.4 м², № 51
ЖК Миръ , Корпус 1
Срок сдачи — Сдан
| 93,40 м² | 38,00 м² | 29,20 м² | 3.15 м | 8 из 8 |
| Общая площадь | Площадь комнат | Площадь кухни | Высота потолка | Этаж |
|---|
| Два санузла | Терраса | Отделка — |
Нет
|
|---|
Уникальные квартиры
Выберите условия покупки
Забронируйте объект по телефону
Онлайн-бронирование временно недоступно