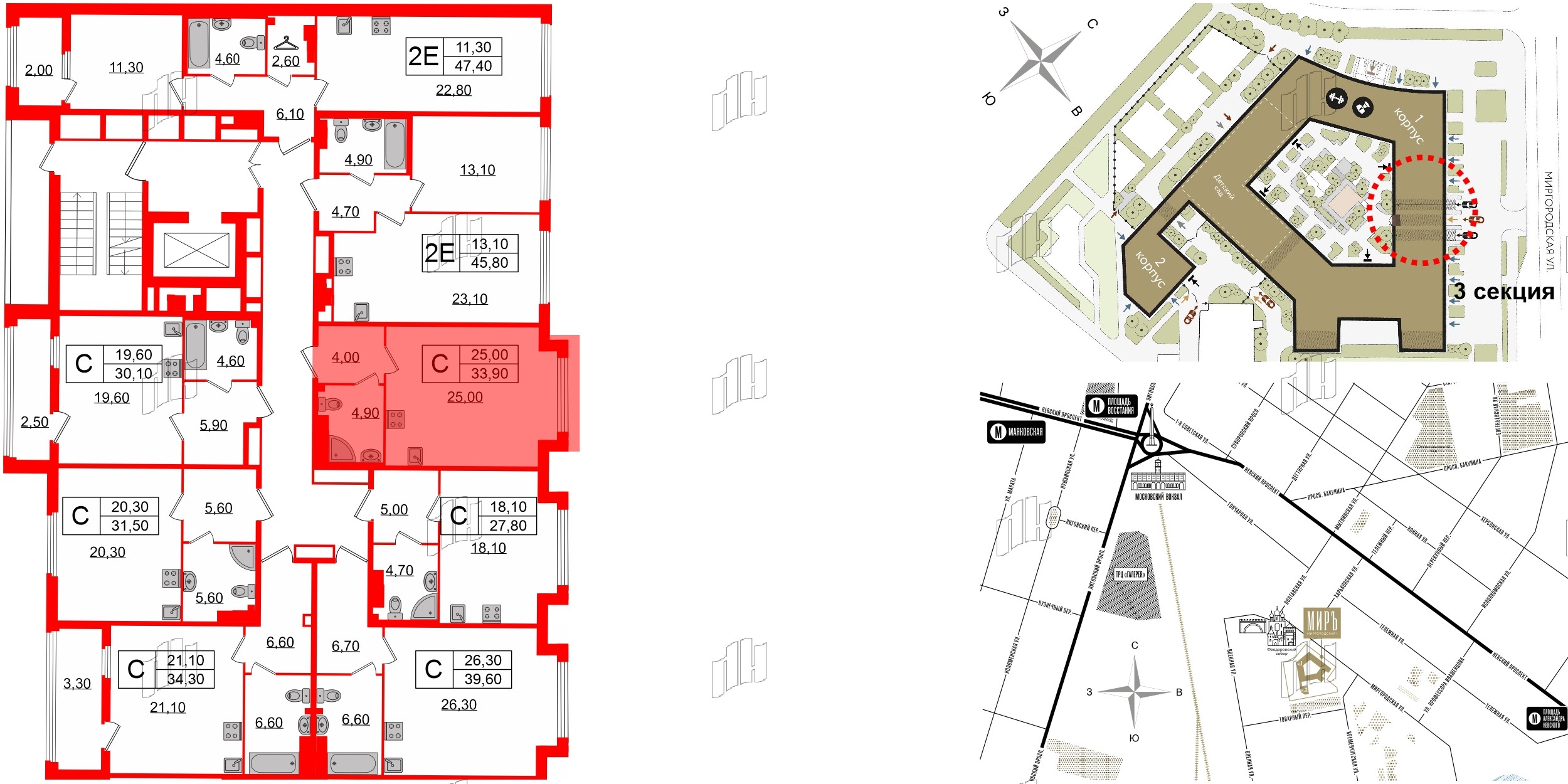
Студия 33.8 м², № 73
ЖК «Миръ» , Корпус 1
Срок сдачи — Сдан
| 33,80 м² | 25,00 м² | 2.85 м | 5 из 8 |
| Общая площадь | Площадь комнат | Высота потолка | Этаж |
|---|
| Тип санузла:  | Совмещенный | Балкон - нет | Отделка — |
Нет
|
|---|
Выберите условия покупки
Забронируйте объект по телефону
Онлайн-бронирование временно недоступно