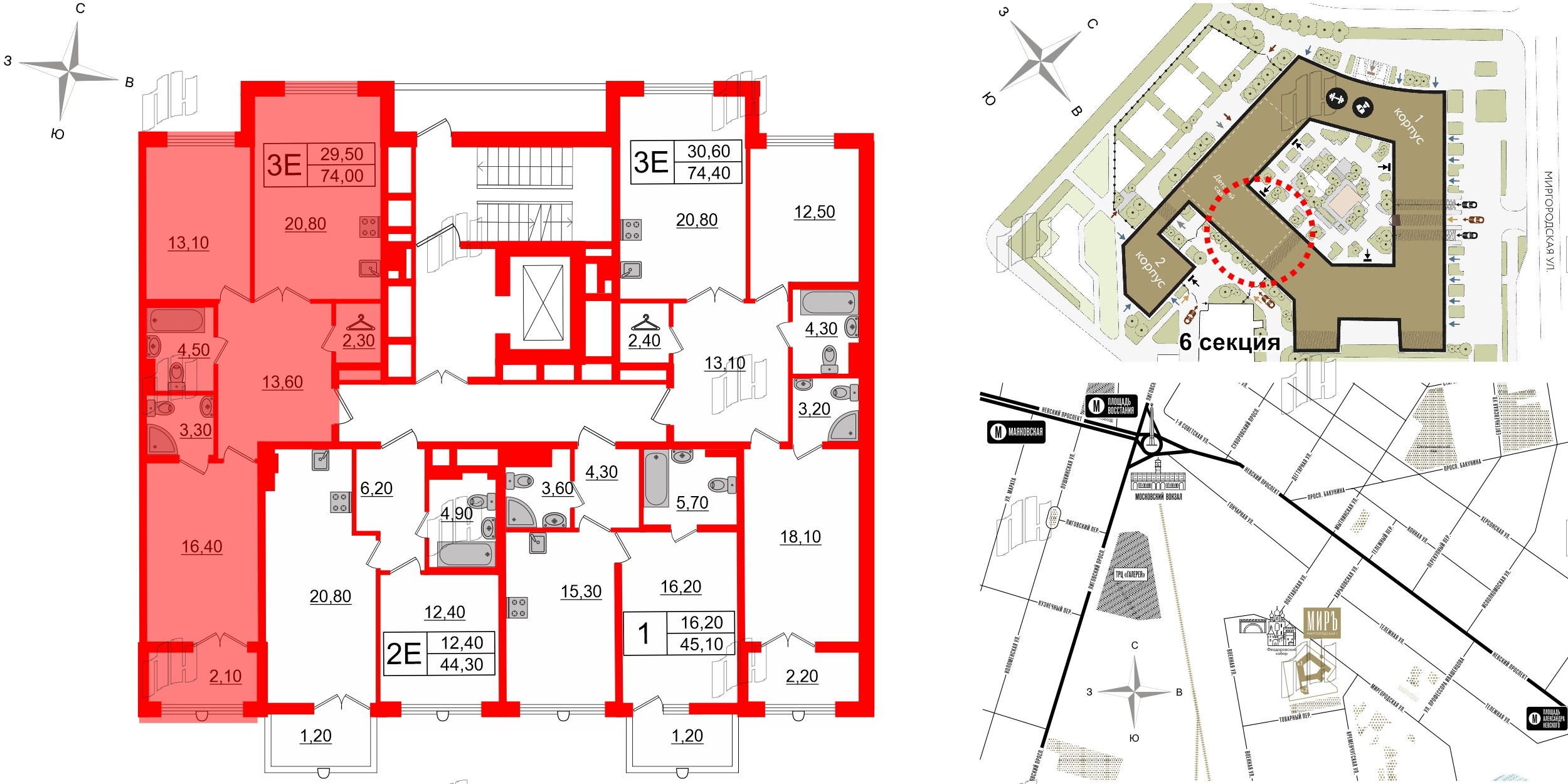
3е комнатная квартира 74 м², № 199
ЖК Миръ , Корпус 1
Срок сдачи — Сдан
| 74,00 м² | 29,50 м² | 20,80 м² | 2.85 м | 6 из 8 |
| Общая площадь | Площадь комнат | Площадь кухни | Высота потолка | Этаж |
|---|
| Два санузла | Лоджия | Отделка — |
Нет
|
|---|
Выберите условия покупки
Забронируйте объект по телефону
Онлайн-бронирование временно недоступно