Top.Mail.Ru

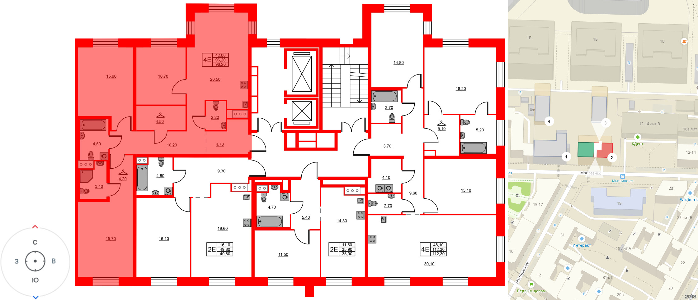
4е комнатная квартира 96.2 м², № 65

Квартира в ЖК «Моисеенко 10», 3 комнатная, 96.2 м², 3 этаж
Квартира в ЖК «Моисеенко 10», 3 комнатная, 96.2 м², 3 этаж
96,20 м² 42,00 м² 20,50 м² 3 м 3 из 9
Общая площадь Площадь комнат Площадь кухни Высота потолка Этаж
Три санузла Балкон - нет Отделка — 
Нет
Выберите условия покупки
Перейти к сравнению