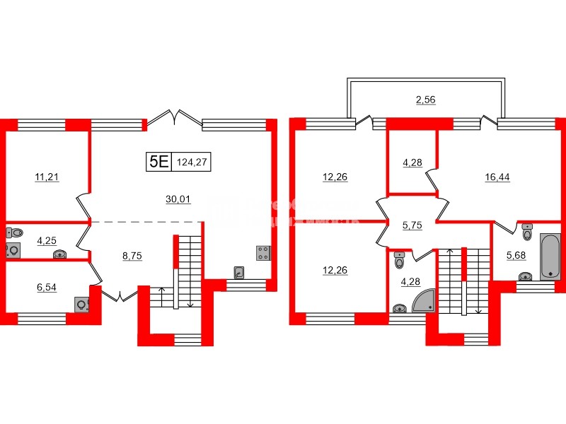
5е комнатная квартира 124.27 м², № 71.358
ЖК «Моменты Репино» , Очередь 2
Срок сдачи — II кв. 2027 г.
| 124,27 м² | 52,17 м² | 30,01 м² | 3.4 м | 1 из 2 |
| Общая площадь | Площадь комнат | Площадь кухни | Высота потолка | Этаж |
|---|
| Три санузла | Есть балкон | Отделка — |
Нет
|
|---|
Выберите условия покупки
Забронируйте объект по телефону
Онлайн-бронирование временно недоступно