Top.Mail.Ru

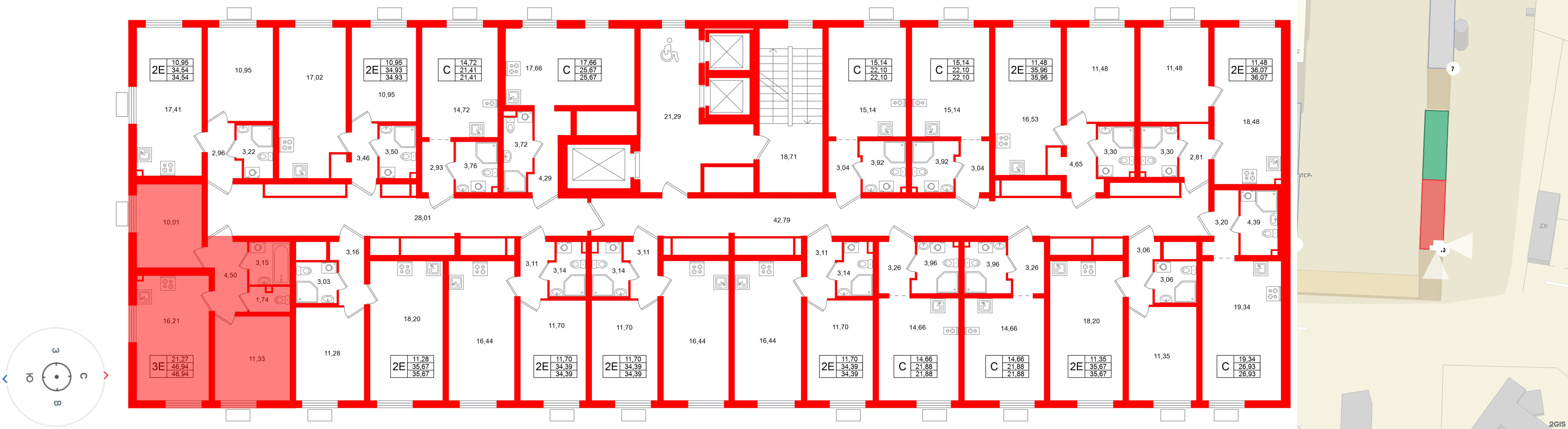
3е комнатная квартира 46.94 м², № 1498

Квартира в ЖК 'Морская миля', 2 комнатная, 46.94 м², 2 этаж
Квартира в ЖК 'Морская миля', 2 комнатная, 46.94 м², 2 этаж
46,94 м² 2.56 м 2 из 23
Общая площадь Высота потолка Этаж
Тип санузла:  Раздельный Отделка — 
Comfort Stone
Выберите условия покупки
Перейти к сравнению