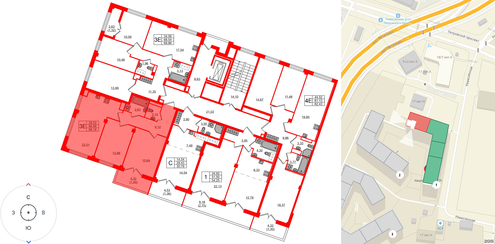
3е комнатная квартира 68.8 м², № 39
ЖК Neva Residence , Корпус 1
Срок сдачи — Сдан
| 68,80 м² | 29,52 м² | 22,51 м² | 3 м | 8 из 8 |
| Общая площадь | Площадь комнат | Площадь кухни | Высота потолка | Этаж |
|---|
| Тип санузла:  | Раздельный | Есть балкон | Отделка — |
Нет
|
|---|
Выберите условия покупки
Забронируйте объект по телефону
Онлайн-бронирование временно недоступно