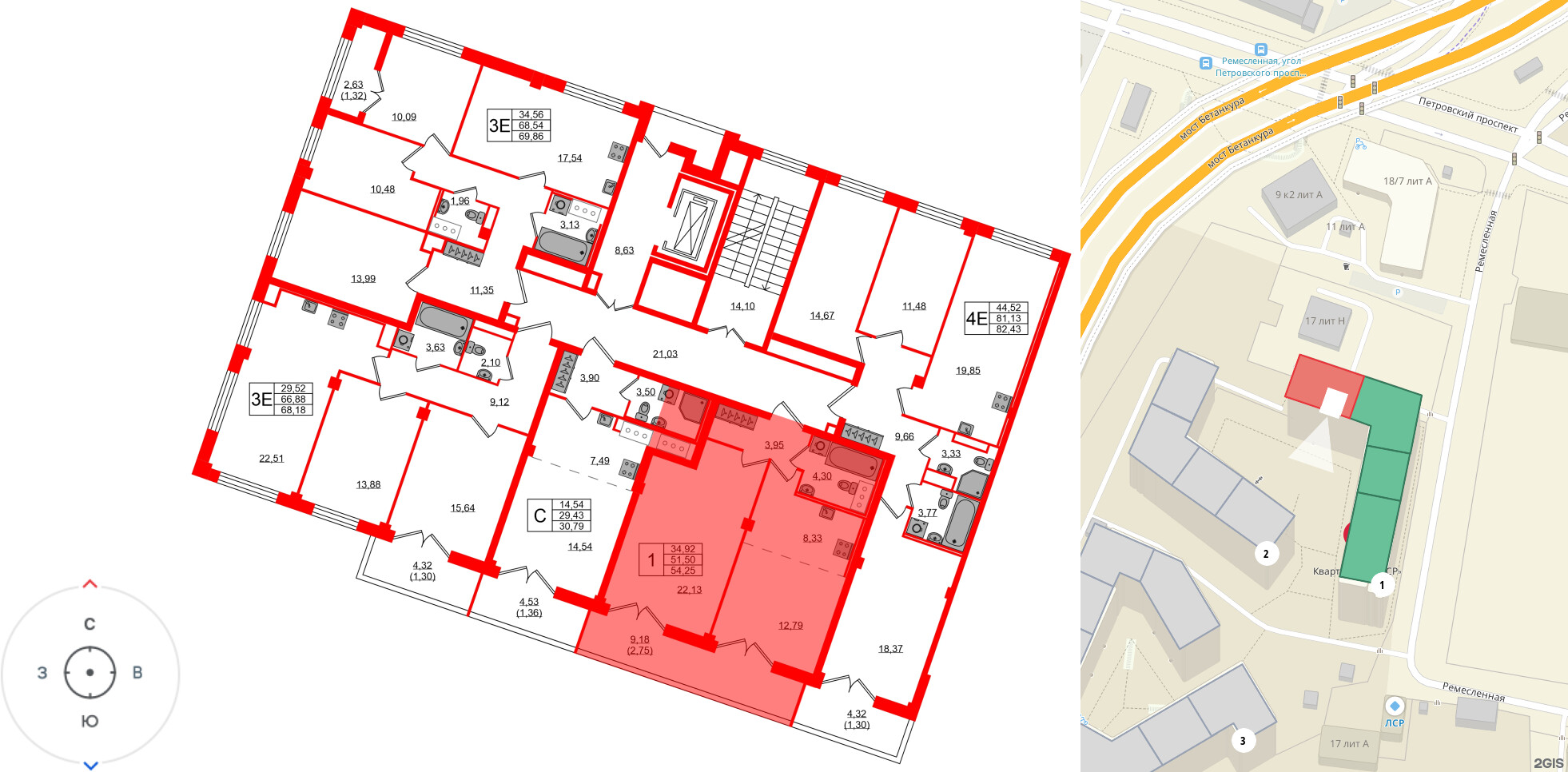
1 комнатная квартира 54.9 м², № 41
ЖК Neva Residence , Корпус 1
Срок сдачи — Сдан
| 54,90 м² | 22,13 м² | 12,79 м² | 3 м | 8 из 8 |
| Общая площадь | Площадь комнат | Площадь кухни | Высота потолка | Этаж |
|---|
| Тип санузла:  | Совмещенный | Есть балкон | Отделка — |
Нет
|
|---|
Выберите условия покупки
Забронируйте объект по телефону
Онлайн-бронирование временно недоступно