Top.Mail.Ru

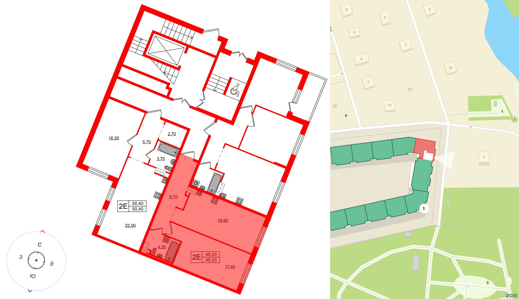
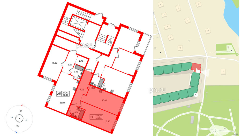
2е комнатная квартира 49.2 м², № 97

Квартира в ЖК Невский Берег, 1 комнатная, 49.2 м², 1 этаж
Квартира в ЖК Невский Берег, 1 комнатная, 49.2 м², 1 этаж
49,20 м² 27,46 м² 18,23 м² 2.72 м 1 из 5
Общая площадь Площадь комнат Площадь кухни Высота потолка Этаж
Тип санузла:  Раздельный Лоджия Отделка — 
Да

Уникальные квартиры

Выберите условия покупки
Перейти к сравнению