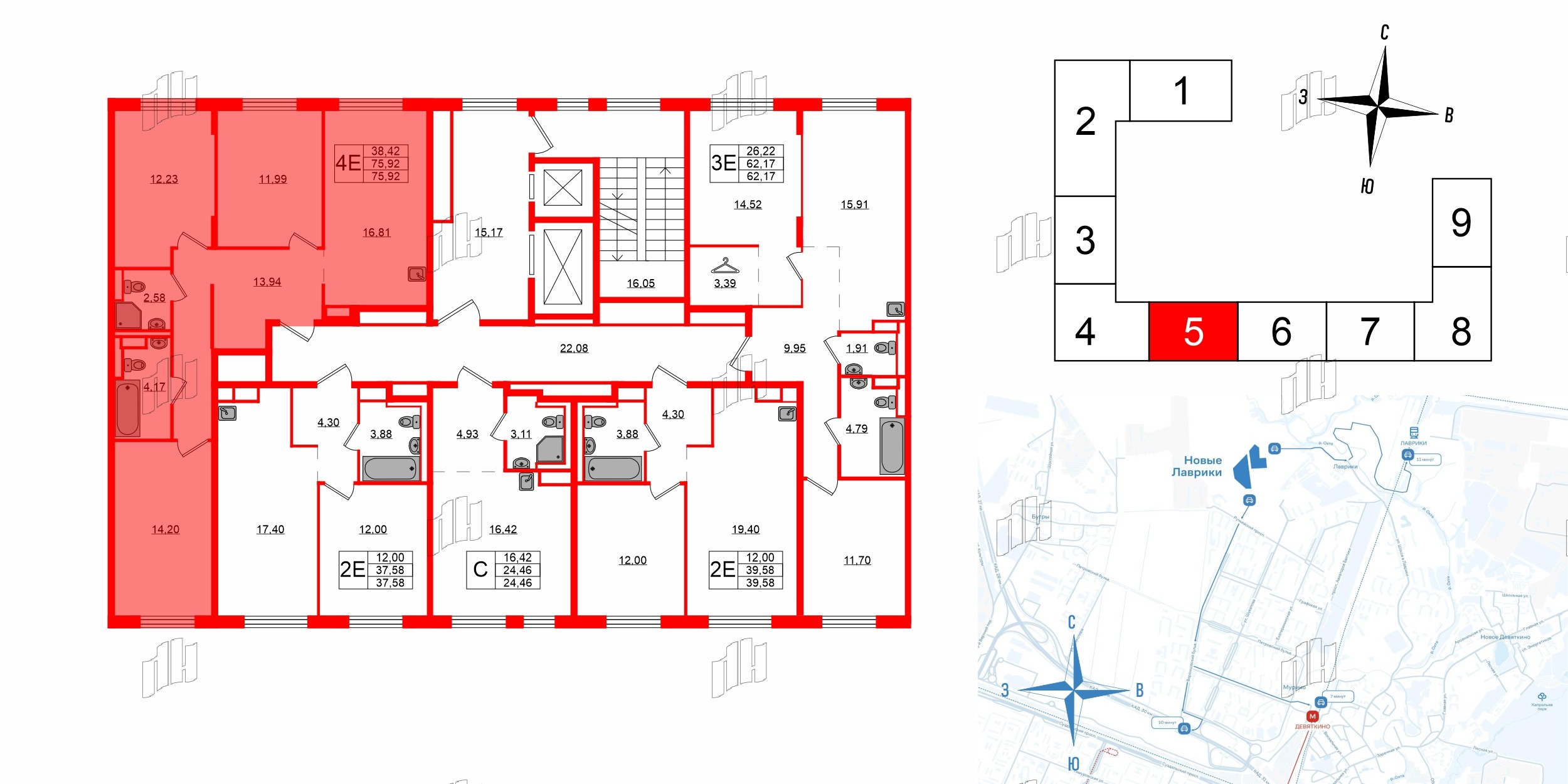
4е комнатная квартира 75.92 м², № 353
ЖК Новые Лаврики , Корпус 1.3
Срок сдачи — IV кв. 2026 г.
| 75,92 м² | 38,42 м² | 16,81 м² | 2.7 м | 10 из 12 |
| Общая площадь | Площадь комнат | Площадь кухни | Высота потолка | Этаж |
|---|
| Два санузла | Балкон - нет | Отделка — |
|---|
Выберите условия покупки
Забронируйте объект по телефону
Онлайн-бронирование временно недоступно