Top.Mail.Ru

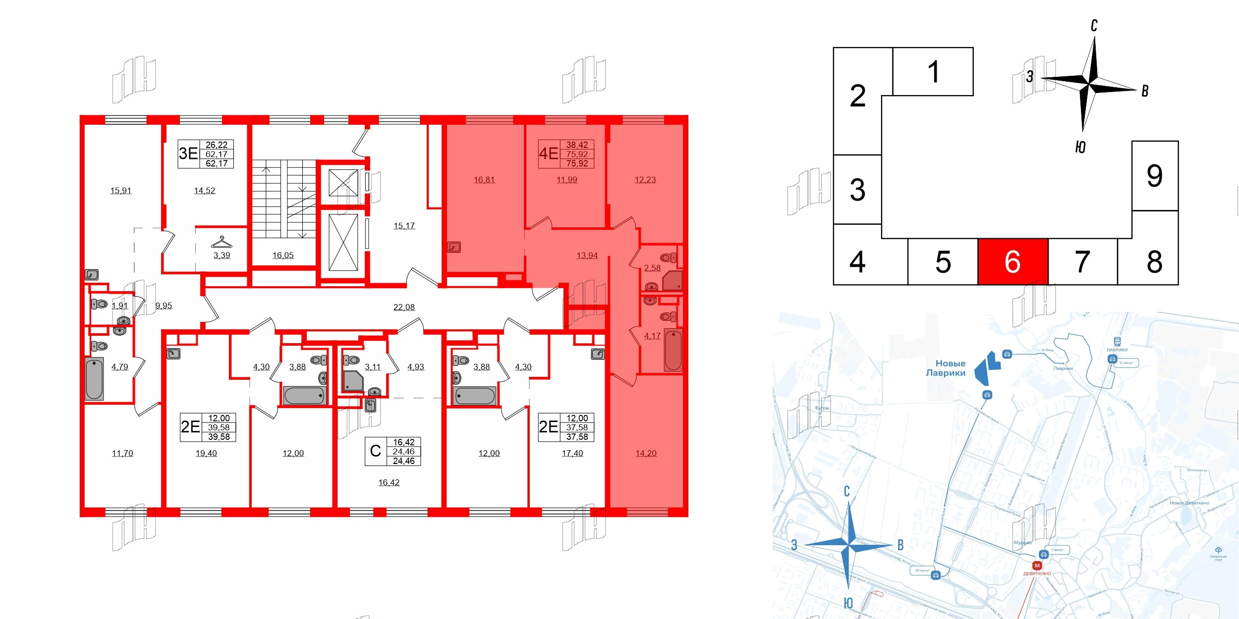
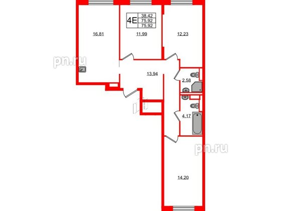
4е комнатная квартира 75.92 м², № 404

Квартира в ЖК Новые Лаврики, 3 комнатная, 75.92 м², 10 этаж
Квартира в ЖК Новые Лаврики, 3 комнатная, 75.92 м², 10 этаж
75,92 м² 38,42 м² 16,81 м² 2.7 м 10 из 12
Общая площадь Площадь комнат Площадь кухни Высота потолка Этаж
Два санузла Балкон - нет Отделка — 
White Box ("Уайт Бокс")
Выберите условия покупки
Перейти к сравнению