Top.Mail.Ru

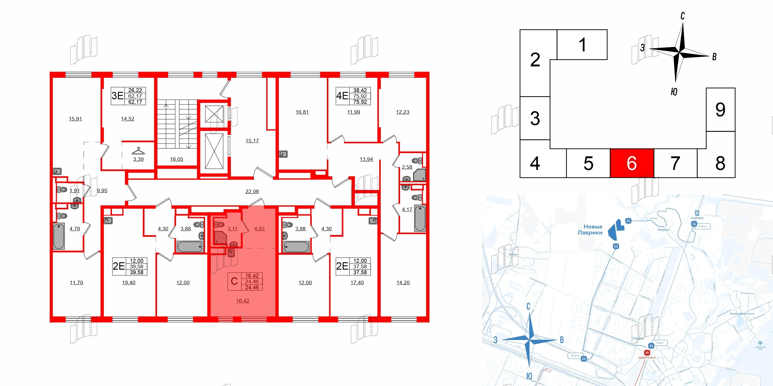
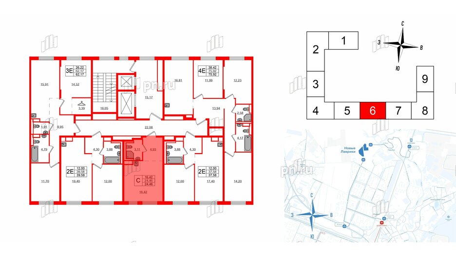
Студия 24.46 м², № 366

Квартира в ЖК Новые Лаврики, студия, 24.46 м², 2 этаж
Квартира в ЖК Новые Лаврики, студия, 24.46 м², 2 этаж
24,46 м² 16,42 м² 2.7 м 2 из 12
Общая площадь Площадь комнат Высота потолка Этаж
Тип санузла:  Совмещенный Балкон - нет Отделка — 
White Box ("Уайт Бокс")
Выберите условия покупки
Перейти к сравнению