Top.Mail.Ru

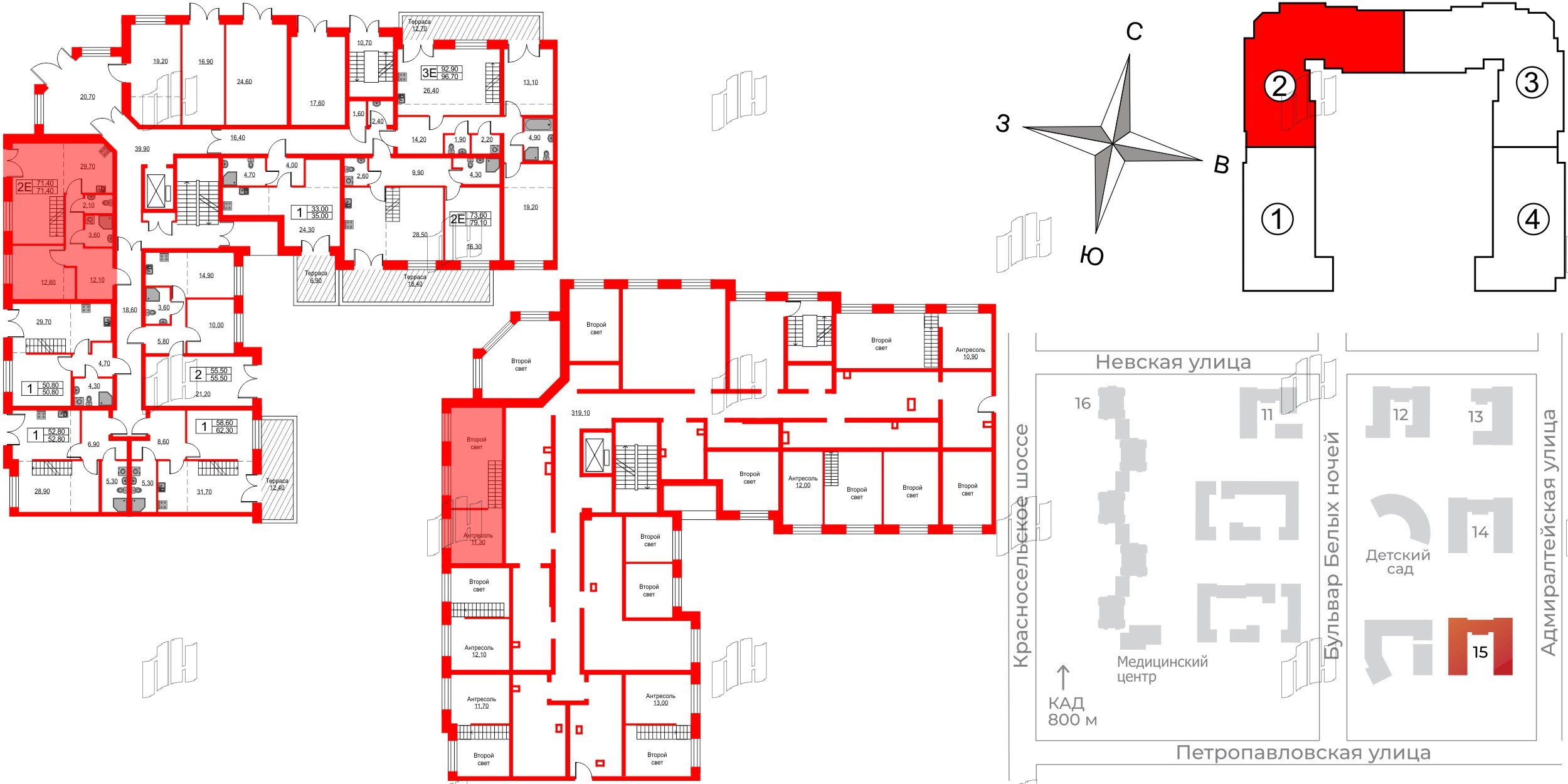
2е комнатная квартира 71.4 м², № 65

Квартира в ЖК NEWПИТЕР, 1 комнатная, 71.4 м², 1 этаж
Квартира в ЖК NEWПИТЕР, 1 комнатная, 71.4 м², 1 этаж
71,40 м² 12,60 м² 30,50 м² 2.7 м 1 из 7
Общая площадь Площадь комнат Площадь кухни Высота потолка Этаж
Тип санузла:  Раздельный Балкон - нет Отделка — 
Нет

Уникальные квартиры

Выберите условия покупки
Перейти к сравнению