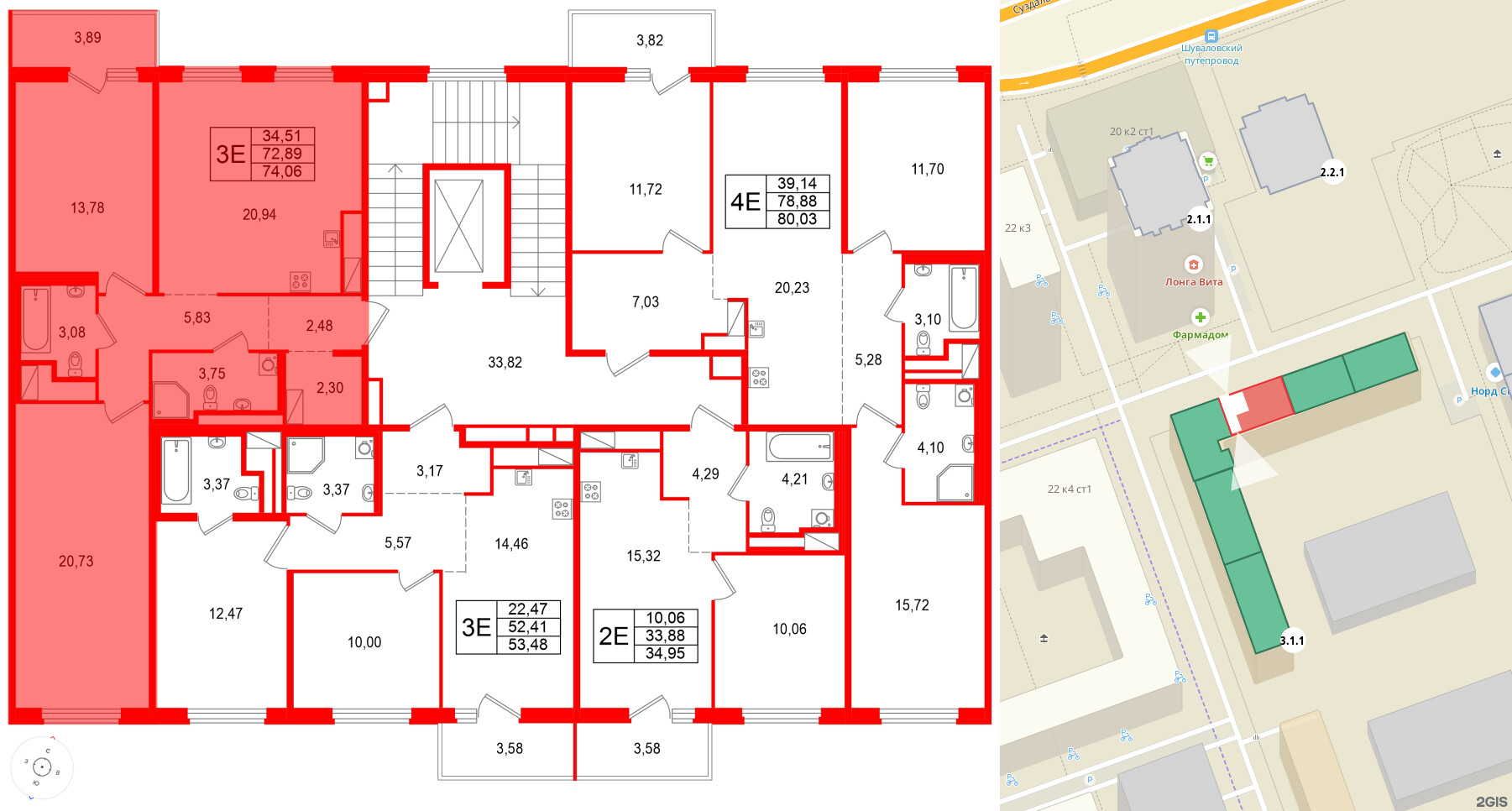
3е комнатная квартира 74.06 м², № 172
ЖК "OKLA" , 3.1.1
Срок сдачи — IV кв. 2027 г.
| 74,06 м² | 34,51 м² | 20,94 м² | 2.7 м | 2 из 7 |
| Общая площадь | Площадь комнат | Площадь кухни | Высота потолка | Этаж |
|---|
| Два санузла | Есть балкон | Отделка — |
Нет
|
|---|
Выберите условия покупки
Забронируйте объект по телефону
Онлайн-бронирование временно недоступно