Top.Mail.Ru

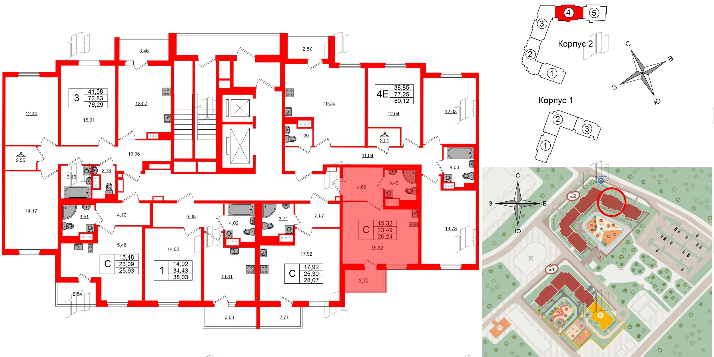
Студия 23.49 м², № 241

Квартира в ЖК «ПАТИО. Уютный квартал.», студия, 23.49 м², 3 этаж
Квартира в ЖК «ПАТИО. Уютный квартал.», студия, 23.49 м², 3 этаж
23,49 м² 15,32 м² 2.77 м 3 из 11
Общая площадь Площадь комнат Высота потолка Этаж
Тип санузла:  Совмещенный Лоджия Отделка — 
Отделка ЖК ПАТИО.Уютный квартал
Отделка ЖК ПАТИО.Уютный квартал
Выберите условия покупки
Перейти к сравнению