Top.Mail.Ru

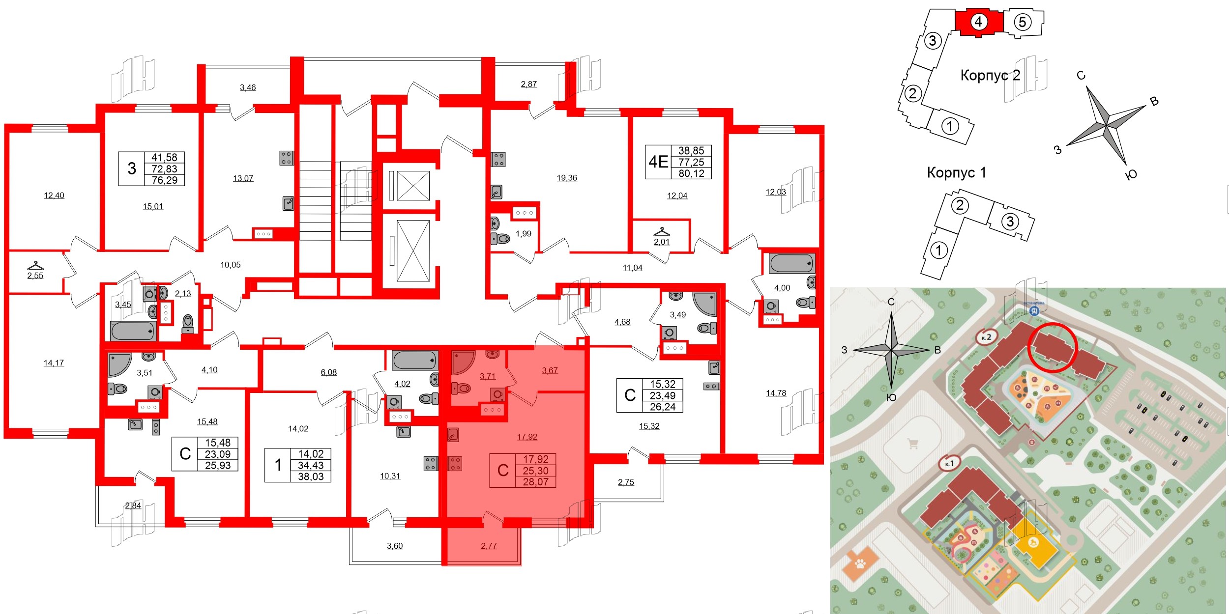
Студия 25.3 м², № 242

Квартира в ЖК ПАТИО. Уютный квартал., студия, 25.3 м², 3 этаж
Квартира в ЖК ПАТИО. Уютный квартал., студия, 25.3 м², 3 этаж
25,30 м² 17,92 м² 3 из 11
Общая площадь Площадь комнат Этаж
Тип санузла:  Совмещенный Лоджия Отделка — 
Отделка ЖК ПАТИО.Уютный квартал
Отделка ЖК ПАТИО.Уютный квартал
Выберите условия покупки
Перейти к сравнению