Top.Mail.Ru

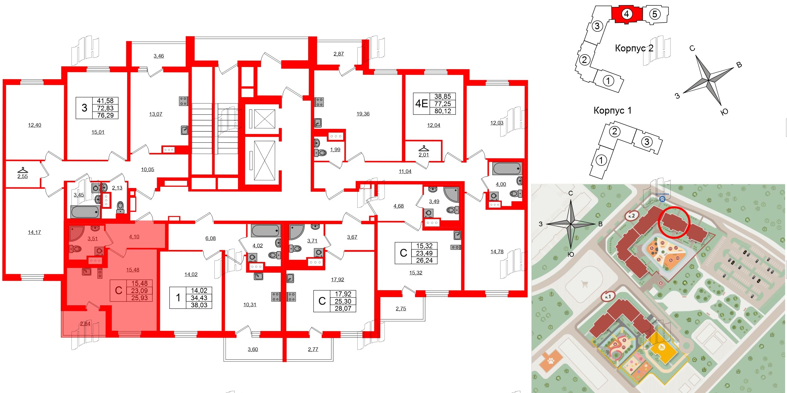
Студия 23.09 м², № 238

Квартира в ЖК ПАТИО. Уютный квартал., студия, 23.09 м², 2 этаж
Квартира в ЖК ПАТИО. Уютный квартал., студия, 23.09 м², 2 этаж
23,09 м² 15,48 м² 2 из 11
Общая площадь Площадь комнат Этаж
Тип санузла:  Совмещенный Лоджия Отделка — 
Отделка ЖК ПАТИО.Уютный квартал
Отделка ЖК ПАТИО.Уютный квартал
Выберите условия покупки
Перейти к сравнению