Top.Mail.Ru

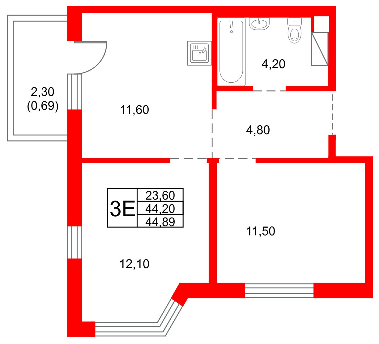
3е комнатная квартира 44.89 м², № 11-17

Квартира в ЖК «Плюс Пулковский», 2 комнатная, 44.89 м², 3 этаж
Квартира в ЖК «Плюс Пулковский», 2 комнатная, 44.89 м², 3 этаж
44,89 м² 23,60 м² 11,60 м² 2.9 м 3 из 5
Общая площадь Площадь комнат Площадь кухни Высота потолка Этаж
Тип санузла:  Совмещенный Есть балкон Отделка — 
Светлая отделка Пулковский
Светлая отделка Пулковский

Условия покупки

Квартира от 5,35 млн | Московский район
*Подробнее
Выберите условия покупки
Перейти к сравнению