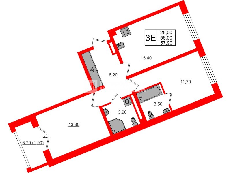
3е комнатная квартира 57.9 м², № 218
ЖК «Пулково Лейк» , Корпус 1
Срок сдачи — IV кв. 2026 г.
| 57,90 м² | 25,00 м² | 15,40 м² | от 2.88 до 4.36 м | 4 из 4 |
| Общая площадь | Площадь комнат | Площадь кухни | Высота потолка | Этаж |
|---|
| Два санузла | Лоджия | Отделка — |
|---|
Уникальные квартиры
Выберите условия покупки
Забронируйте объект по телефону
Онлайн-бронирование временно недоступно