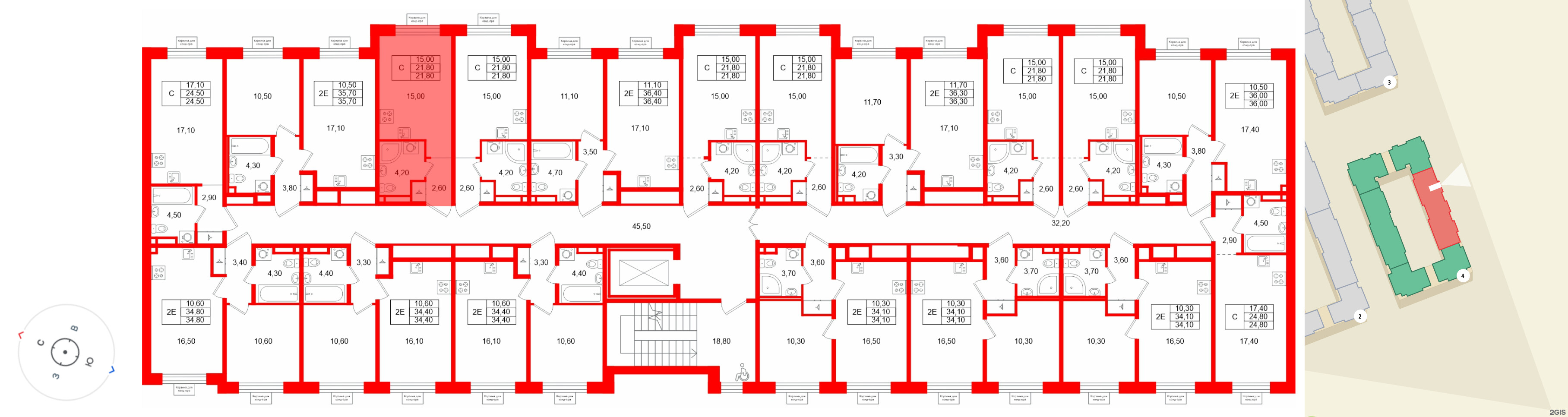
Студия 21.8 м², № 56
ЖК «Пулково Лейк» , Корпус 4
Срок сдачи — IV кв. 2027 г.
| 21,80 м² | 15,00 м² | 2.75 м | 3 из 4 |
| Общая площадь | Площадь комнат | Высота потолка | Этаж |
|---|
| Тип санузла:  | Совмещенный | Балкон - нет | Отделка — |
|---|
Выберите условия покупки
Забронируйте объект по телефону
Онлайн-бронирование временно недоступно