Top.Mail.Ru

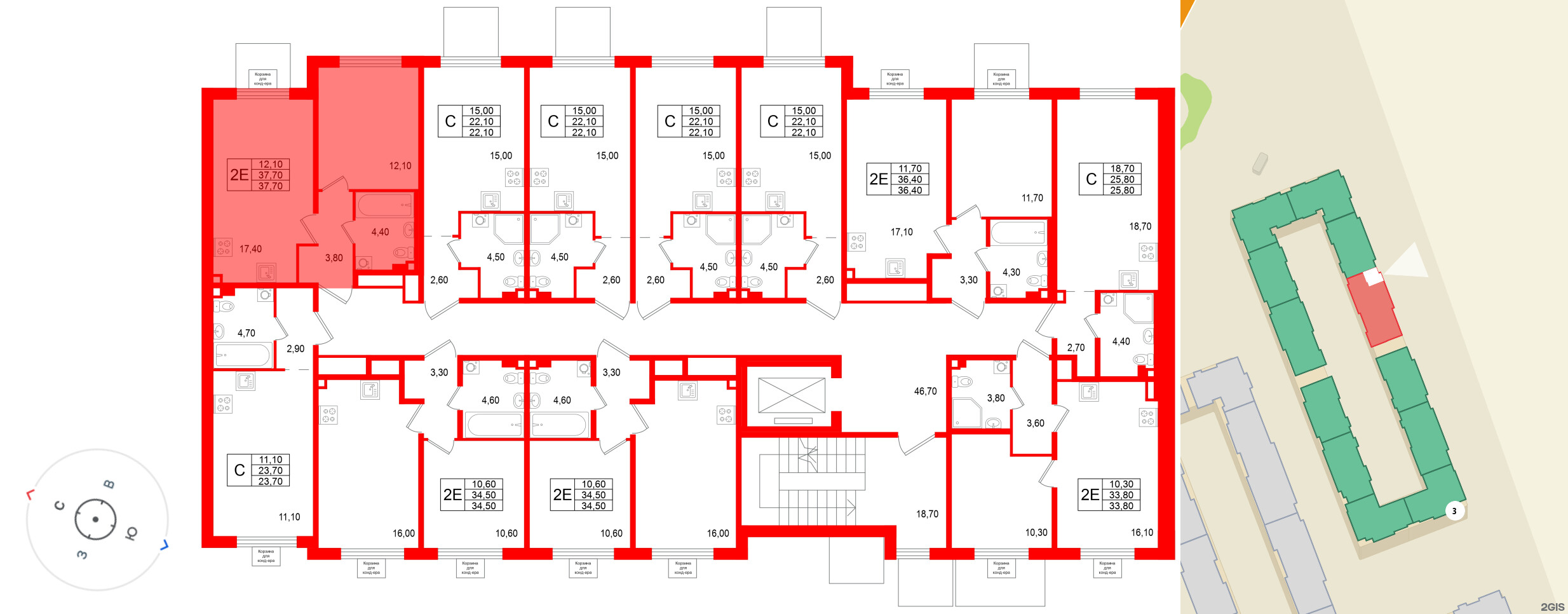
2е комнатная квартира 37.7 м², № 63

Квартира в ЖК «Пулково Лейк», 1 комнатная, 37.7 м², 2 этаж
Квартира в ЖК «Пулково Лейк», 1 комнатная, 37.7 м², 2 этаж
37,70 м² 12,10 м² 17,40 м² 2.75 м 2 из 4
Общая площадь Площадь комнат Площадь кухни Высота потолка Этаж
Тип санузла:  Совмещенный Балкон - нет Отделка — 
Да
Выберите условия покупки
Перейти к сравнению