Top.Mail.Ru

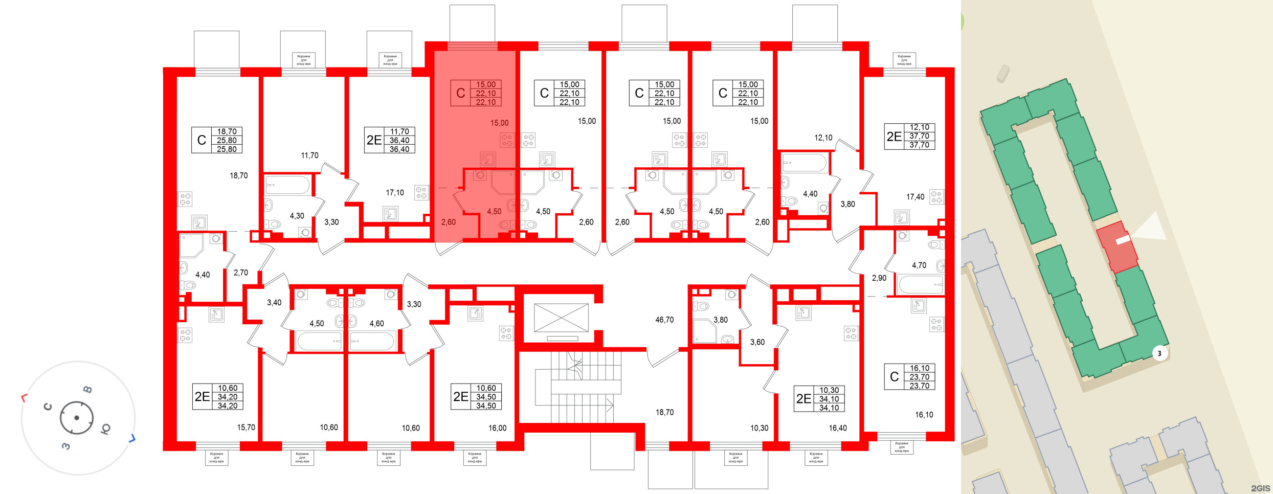
Студия 22.1 м², № 95

Квартира в ЖК «Пулково Лейк», студия, 22.1 м², 2 этаж
Квартира в ЖК «Пулково Лейк», студия, 22.1 м², 2 этаж
22,10 м² 15,00 м² 2.75 м 2 из 4
Общая площадь Площадь комнат Высота потолка Этаж
Тип санузла:  Совмещенный Балкон - нет Отделка — 
Да
Выберите условия покупки
Перейти к сравнению