Top.Mail.Ru

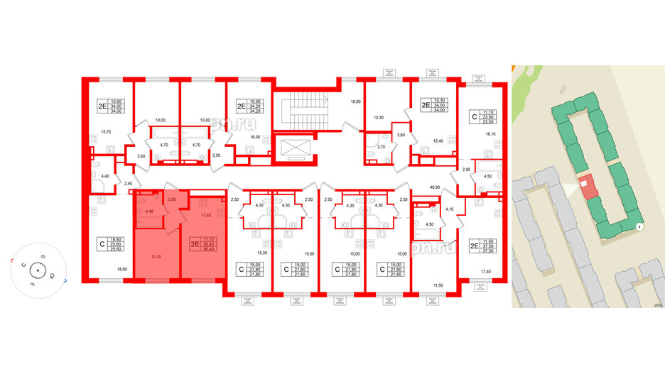
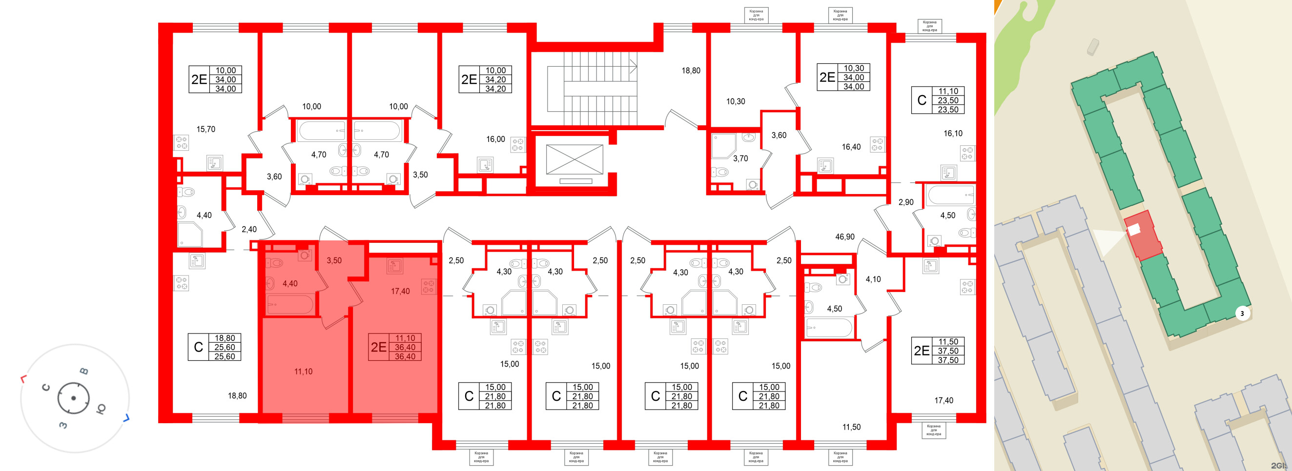
2е комнатная квартира 36.4 м², № 266

Квартира в ЖК «Пулково Лейк», 1 комнатная, 36.4 м², 3 этаж
Квартира в ЖК «Пулково Лейк», 1 комнатная, 36.4 м², 3 этаж
36,40 м² 11,10 м² 17,40 м² 2.75 м 3 из 4
Общая площадь Площадь комнат Площадь кухни Высота потолка Этаж
Тип санузла:  Совмещенный Балкон - нет Отделка — 
Да
Выберите условия покупки
Перейти к сравнению