Top.Mail.Ru

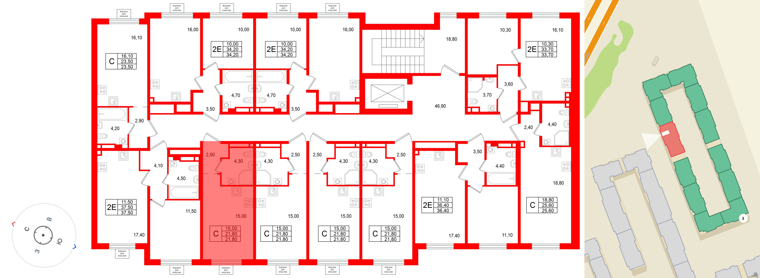
Студия 21.8 м², № 310

Квартира в ЖК «Пулково Лейк», студия, 21.8 м², 3 этаж
Квартира в ЖК «Пулково Лейк», студия, 21.8 м², 3 этаж
21,80 м² 15,00 м² 2.75 м 3 из 4
Общая площадь Площадь комнат Высота потолка Этаж
Тип санузла:  Совмещенный Балкон - нет Отделка — 
Да
Выберите условия покупки
Перейти к сравнению