Top.Mail.Ru

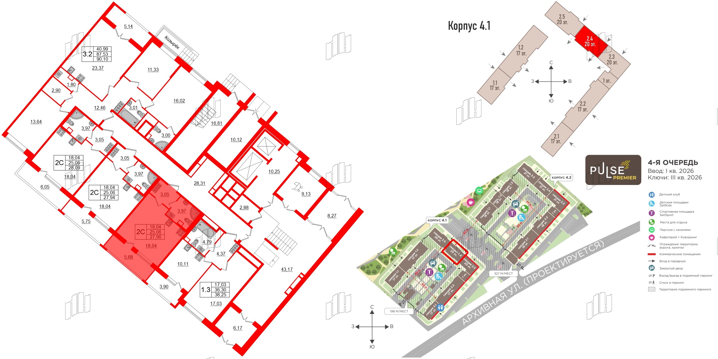
Студия 25.06 м², № 455 Переуступка

Квартира в ЖК «Пульс Премьер», студия, 25.06 м², 1 этаж
Квартира в ЖК «Пульс Премьер», студия, 25.06 м², 1 этаж
25,06 м² 18,04 м² 2.77 м 1 из 20
Общая площадь Площадь комнат Высота потолка Этаж
Тип санузла:  Совмещенный Лоджия Отделка — 
Норд Лайн светлый комфорт
Выберите условия покупки
Перейти к сравнению