Top.Mail.Ru

3е комнатная квартира 56.57 м², № 1022 Переуступка

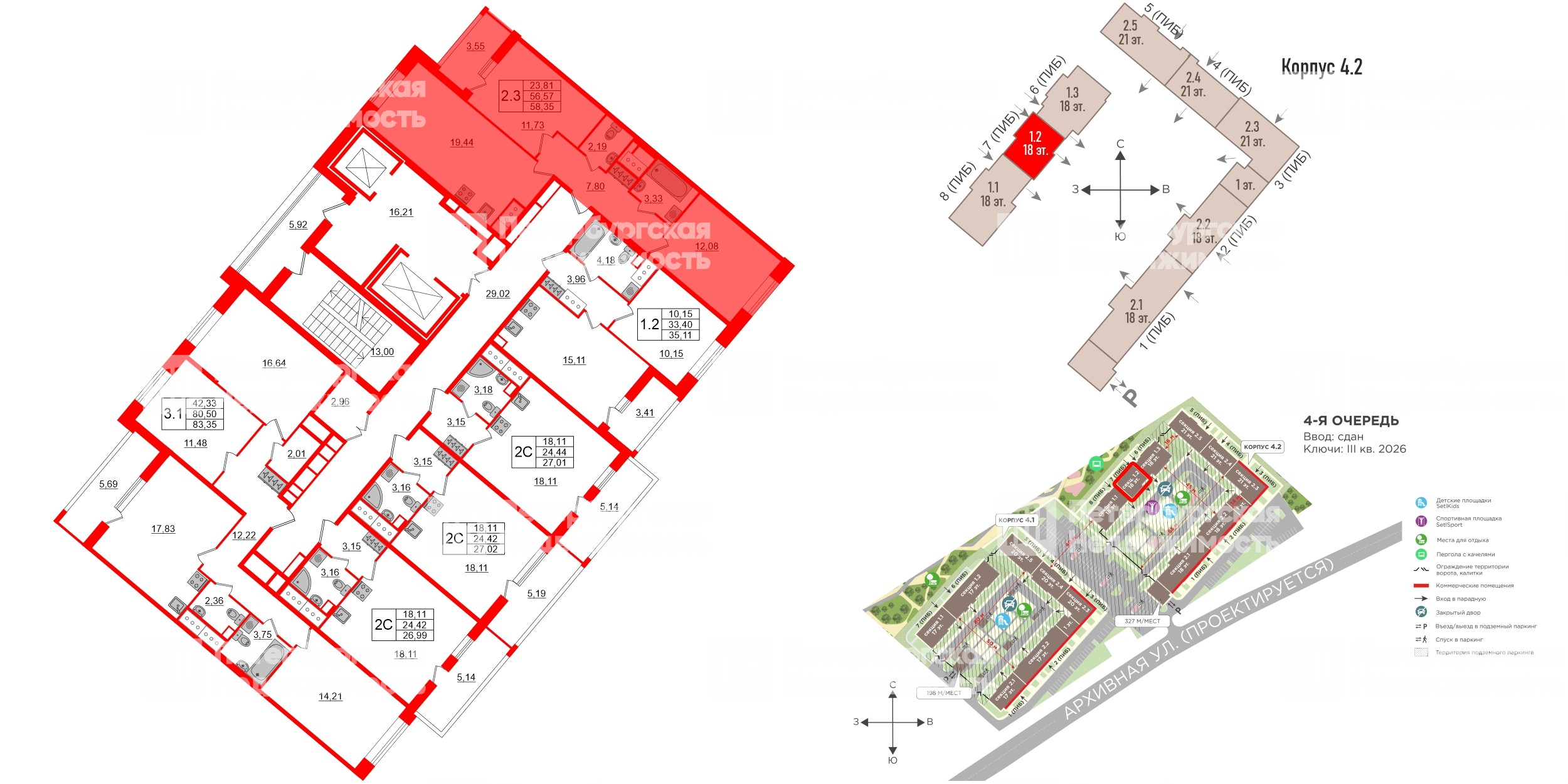
Квартира в ЖК «Пульс Премьер», 2 комнатная, 56.57 м², 16 этаж
Квартира в ЖК «Пульс Премьер», 2 комнатная, 56.57 м², 16 этаж
56,57 м² 23,81 м² 19,44 м² 2.77 м 16 из 18
Общая площадь Площадь комнат Площадь кухни Высота потолка Этаж
Тип санузла:  Раздельный Лоджия Отделка — 
Норд Лайн серый комфорт
Выберите условия покупки
Перейти к сравнению