Top.Mail.Ru

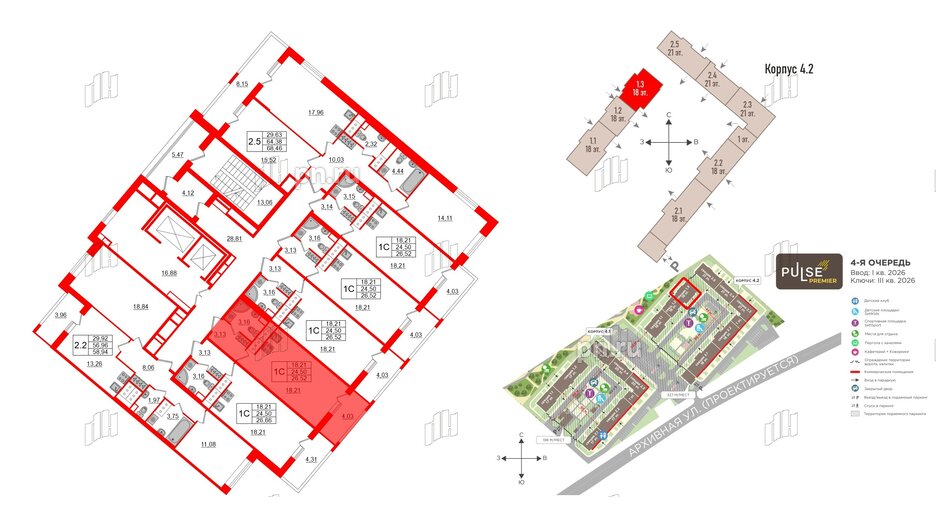
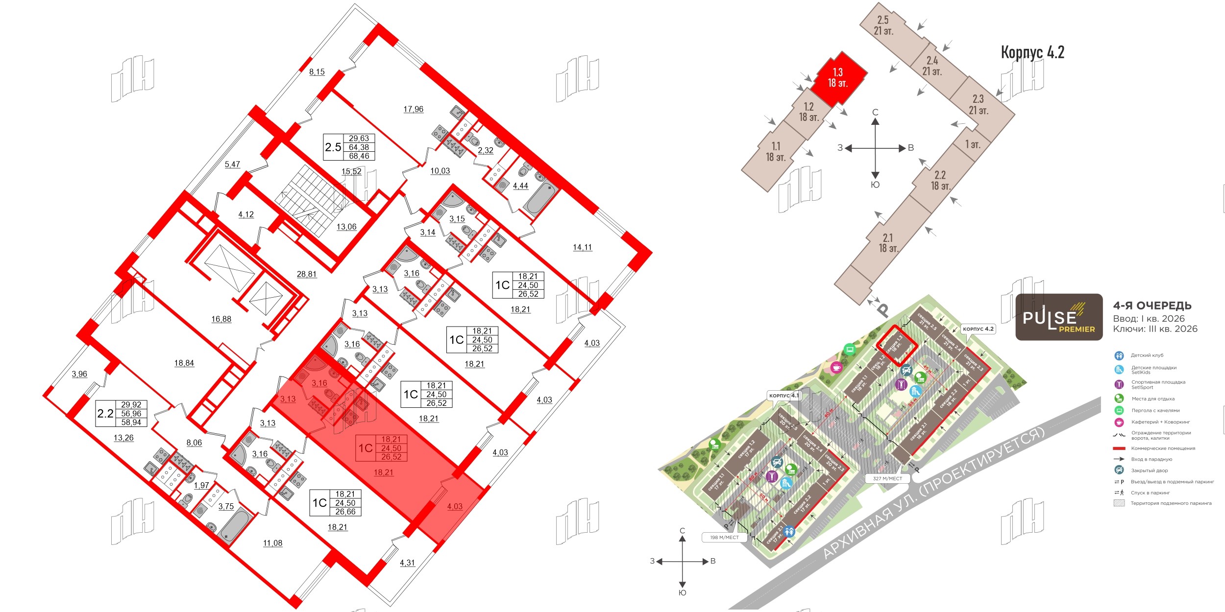
Студия 24.5 м², № 923 Переуступка

Квартира в ЖК «Пульс Премьер», студия, 24.5 м², 17 этаж
Квартира в ЖК «Пульс Премьер», студия, 24.5 м², 17 этаж
24,50 м² 18,21 м² 2.77 м 17 из 18
Общая площадь Площадь комнат Высота потолка Этаж
Тип санузла:  Совмещенный Лоджия Отделка — 
Норд Лайн светлый комфорт
Выберите условия покупки
Перейти к сравнению